0120-16-2331

【受付時間】平日 AM9:00〜PM7:00

メールでお問合せ
現在、空室がございません。

佐一第2ビルの貸事務所・賃貸オフィス情報

佐一第2ビルの貸事務所・賃貸オフィス情報

佐一第2ビル

物件番号
398​-​00023
所在地
東京都千代田区神田司町2-16
最寄駅
神田駅 3分
竣工
1967年6月
規模
地上5階
  • 旧耐震基準

佐一第2ビルの空室フロアリスト

現在、空室がございません。

佐一第2ビルの物件情報

佐一第二ビル(千代田区神田司町)は神田駅徒歩3分、淡路町駅徒歩3分、小川町駅徒歩3分の賃貸オフィスです。

佐一第2ビルのアクセス

佐一第2ビルの募集終了区画

階数 面積 賃料+共益費 保証金 入居時期 更新料 償却費 礼金 平面図 詳細
1 17.00坪 募集終了
2 20.00坪 募集終了
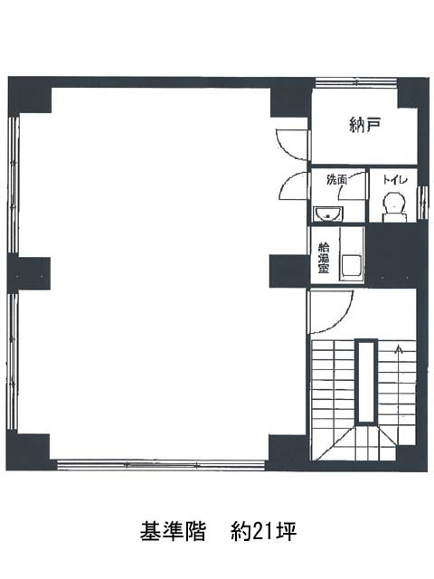
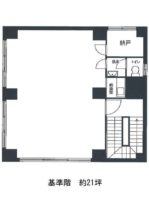
3 21.00坪 募集終了
4 21.00坪 募集終了
5 21.00坪 募集終了

貸事務所・賃貸オフィスを最寄駅から探す

貸事務所・賃貸オフィスを最寄駅の沿線から探す

お問合せ このビルについて問い合わせる