現在、空室がございません。
新商神田ビルの貸事務所・賃貸オフィス情報
新商神田ビルの貸事務所・賃貸オフィス情報
新商神田ビル
- エレベーター
- 個別空調
- 旧耐震基準
新商神田ビルの空室フロアリスト
現在、空室がございません。
新商神田ビルの物件情報
新商神田ビル(千代田区神田司町)は小川町駅徒歩2分、淡路町駅徒歩2分、新御茶ノ水駅徒歩3分の賃貸オフィスです。
新商神田ビルのアクセス
新商神田ビルの募集終了区画
| 階数 | 面積 | 賃料+共益費 | 保証金 | 入居時期 | 更新料 | 償却費 | 礼金 | 平面図 | 詳細 |
|---|---|---|---|---|---|---|---|---|---|
| 1 | 17.89坪 | − | − | 募集終了 | − | − | − | ||
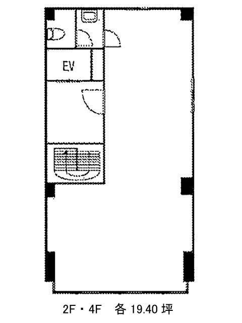
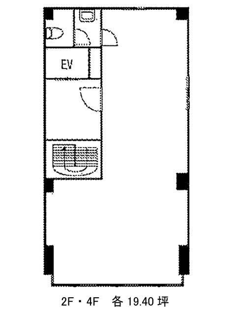
| 2 | 19.40坪 | − | − | 募集終了 | − | − | − | ||
| 3 | 19.24坪 | − | − | 募集終了 | − | − | − | ||
| 4 | 19.40坪 | − | − | 募集終了 | − | − | − |


