0120-16-2331

【受付時間】平日 AM9:00〜PM7:00

メールでお問合せ
現在、空室がございません。

お茶の水茗渓ビルの貸事務所・賃貸オフィス情報

お茶の水茗渓ビルの貸事務所・賃貸オフィス情報

お茶の水茗渓ビル

物件番号
399​-​00031
所在地
東京都千代田区神田駿河台2-3
最寄駅
小川町駅 10分
神保町駅 10分
水道橋駅 11分
竣工
1992年8月
規模
地上8階
  • エレベーター
  • 個別空調
  • 新耐震基準

お茶の水茗渓ビルの空室フロアリスト

現在、空室がございません。

お茶の水茗渓ビルの物件情報

お茶の水茗渓ビル(千代田区神田駿河台)は御茶ノ水駅徒歩2分、新御茶ノ水駅徒歩5分、小川町駅徒歩10分の賃貸オフィスです。

お茶の水茗渓ビルのアクセス

お茶の水茗渓ビルの募集終了区画

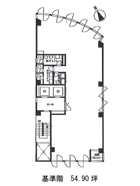
階数 面積 賃料+共益費 保証金 入居時期 更新料 償却費 礼金 平面図 詳細
2 54.90坪 募集終了
3 54.90坪 募集終了
4 54.90坪 募集終了
5 54.90坪 募集終了
6 54.90坪 募集終了
7 54.90坪 募集終了

貸事務所・賃貸オフィスを最寄駅から探す

貸事務所・賃貸オフィスを最寄駅の沿線から探す

お問合せ このビルについて問い合わせる