NCO神田小川町の貸事務所・賃貸オフィス情報
NCO神田小川町の貸事務所・賃貸オフィス情報
NCO神田小川町
- 物件番号
- 400-00012
- 所在地
- 東京都千代田区神田小川町1-8
- 竣工
- 1986年
- 規模
- 地上9階/地下1階
- エレベーター
- 個別空調
- 新耐震基準
NCO神田小川町の空室フロアリスト
| 階数 | 面積 | 賃料+共益費 | 保証金 | 入居時期 | 更新料 | 償却費 | 礼金 | 検討 | 平面図 | 詳細 |
|---|---|---|---|---|---|---|---|---|---|---|
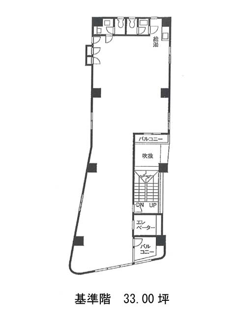
| 5 | 33.00坪 |
617,100円18,700円/坪
|
673万円
|
即 | なし | なし | なし |
NCO神田小川町の物件情報
NCO神田小川町(千代田区神田小川町)は小川町駅徒歩1分、淡路町駅徒歩1分、新御茶ノ水駅徒歩1分の賃貸オフィスです。
NCO神田小川町のアクセス
NCO神田小川町の条件に近い物件
NCO神田小川町の募集終了区画
| 階数 | 面積 | 賃料+共益費 | 保証金 | 入居時期 | 更新料 | 償却費 | 礼金 | 平面図 | 詳細 |
|---|---|---|---|---|---|---|---|---|---|
| 2 | 33.09坪 | − | − | 募集終了 | − | − | − | ||
| 5 | 24.30坪 | − | − | 募集終了 | − | − | − | ||
| 6 | 33.09坪 | − | − | 募集終了 | − | − | − | ||
| 7 | 33.09坪 | − | − | 募集終了 | − | − | − | ||
| 9 | 33.09坪 | − | − | 募集終了 | − | − | − |


