現在、空室がございません。
ラフィネお茶の水の貸事務所・賃貸オフィス情報
ラフィネお茶の水の貸事務所・賃貸オフィス情報
ラフィネお茶の水
- 物件番号
- 400-00005
- 所在地
- 東京都千代田区神田小川町3-28-13
- 竣工
- 1982年3月
- 規模
- 地上13階
- エレベーター
- 個別空調
- 耐震確認中
ラフィネお茶の水の空室フロアリスト
現在、空室がございません。
ラフィネお茶の水の物件情報
ラフィネお茶の水(千代田区神田小川町)は新御茶ノ水駅徒歩3分、小川町駅徒歩4分、淡路町駅徒歩5分の賃貸オフィスです。
ラフィネお茶の水のアクセス
ラフィネお茶の水の募集終了区画
| 階数 | 面積 | 賃料+共益費 | 保証金 | 入居時期 | 更新料 | 償却費 | 礼金 | 平面図 | 詳細 |
|---|---|---|---|---|---|---|---|---|---|
| 1 | 16.12坪 | − | − | 募集終了 | − | − | − | ||
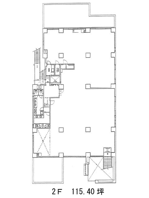
| 2 | 115.40坪 | − | − | 募集終了 | − | − | − |


