現在、空室がございません。
TSKビルの貸事務所・賃貸オフィス情報
TSKビルの貸事務所・賃貸オフィス情報
TSKビル
- 物件番号
- 401-00036
- 所在地
- 東京都千代田区神田松永町104
- 竣工
- 2000年4月
- 規模
- 地上10階/地下1階
- エレベーター
- 個別空調
- 新耐震基準
TSKビルの空室フロアリスト
現在、空室がございません。
TSKビルの物件情報
TSKビル(千代田区神田松永町)は秋葉原駅徒歩1分、岩本町駅徒歩6分、末広町駅徒歩8分の賃貸オフィスです。
TSKビルのアクセス
TSKビルの募集終了区画
| 階数 | 面積 | 賃料+共益費 | 保証金 | 入居時期 | 更新料 | 償却費 | 礼金 | 平面図 | 詳細 |
|---|---|---|---|---|---|---|---|---|---|
| 1 | 24.15坪 | − | − | 募集終了 | − | − | − | ||
| 1 | 55.02坪 | − | − | 募集終了 | − | − | − | ||
| 2 | 30.87坪 | − | − | 募集終了 | − | − | − | ||
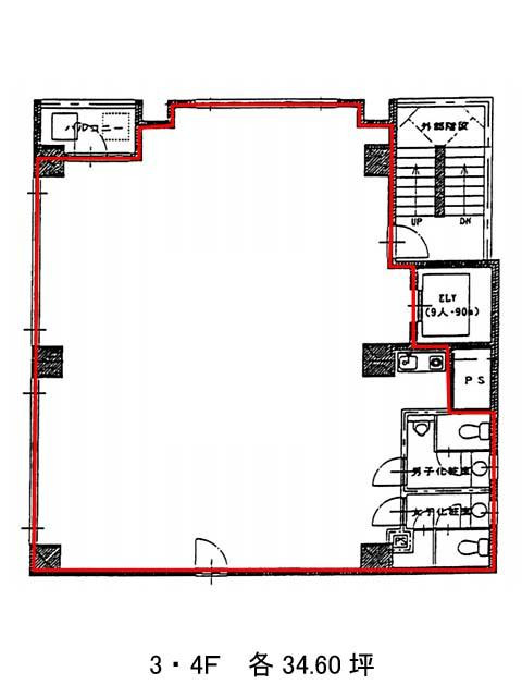
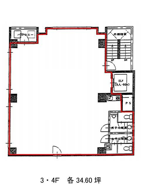
| 3 | 34.60坪 | − | − | 募集終了 | − | − | − | ||
| 4 | 34.60坪 | − | − | 募集終了 | − | − | − | ||
| 6 | 21.49坪 | − | − | 募集終了 | − | − | − | ||
| 6 | 34.60坪 | − | − | 募集終了 | − | − | − |


