NTビルの貸事務所・賃貸オフィス情報
NTビルの貸事務所・賃貸オフィス情報
NTビル
- エレベーター
- 個別空調
- 新耐震基準
NTビルの空室フロアリスト
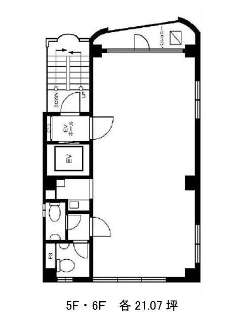
| 階数 | 面積 | 賃料+共益費 | 保証金 | 入居時期 | 更新料 | 償却費 | 礼金 | 検討 | 平面図 | 詳細 |
|---|---|---|---|---|---|---|---|---|---|---|
| 5 | 21.07坪 |
370,832円17,600円/坪
|
164万円
|
即 | なし | 1ケ月 | 1ケ月 |
NTビルの物件情報
NTビル(千代田区神田神保町)は神保町駅徒歩4分、新御茶ノ水駅徒歩8分、御茶ノ水駅徒歩8分の賃貸オフィスです。
NTビルのアクセス
NTビルの募集終了区画
| 階数 | 面積 | 賃料+共益費 | 保証金 | 入居時期 | 更新料 | 償却費 | 礼金 | 平面図 | 詳細 |
|---|---|---|---|---|---|---|---|---|---|
| 2 | 20.94坪 | − | − | 募集終了 | − | − | − | ||
| 3 | 21.72坪 | − | − | 募集終了 | − | − | − | ||
| 4 | 21.07坪 | − | − | 募集終了 | − | − | − | ||
| 6 | 20.91坪 | − | − | 募集終了 | − | − | − | ||
| 7 | 20.91坪 | − | − | 募集終了 | − | − | − |


