現在、空室がございません。
淡路町駅前ビルの貸事務所・賃貸オフィス情報
淡路町駅前ビルの貸事務所・賃貸オフィス情報
淡路町駅前ビル
- 物件番号
- 403-00155
- 所在地
- 東京都千代田区神田須田町1-2-7
- 竣工
- 1981年2月
- 規模
- 地上9階/地下1階
- エレベーター
- 個別空調
- 耐震補強済み
淡路町駅前ビルの空室フロアリスト
現在、空室がございません。
淡路町駅前ビルの物件情報
淡路町駅前ビル(千代田区神田須田町)は小川町駅徒歩1分、淡路町駅徒歩1分、新御茶ノ水駅徒歩4分の賃貸オフィスです。
淡路町駅前ビルのアクセス
淡路町駅前ビルの募集終了区画
| 階数 | 面積 | 賃料+共益費 | 保証金 | 入居時期 | 更新料 | 償却費 | 礼金 | 平面図 | 詳細 |
|---|---|---|---|---|---|---|---|---|---|
| 地下1 | 125.00坪 | − | − | 募集終了 | − | − | − | ||
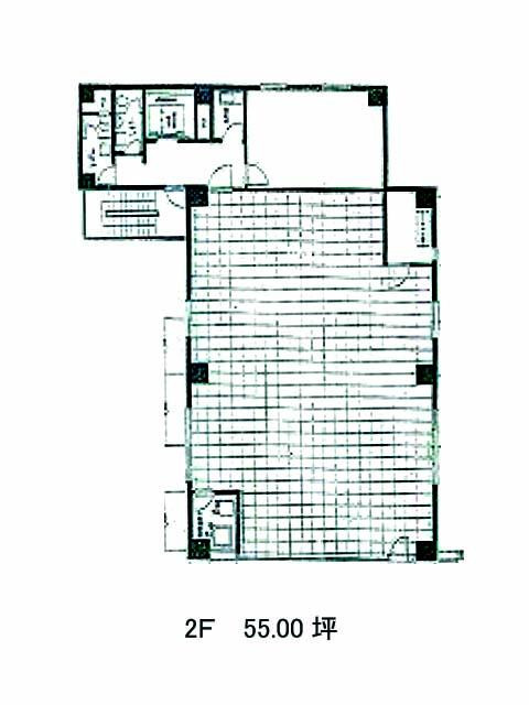
| 2 | 55.00坪 | − | − | 募集終了 | − | − | − | ||
| 3 | 59.00坪 | − | − | 募集終了 | − | − | − | ||
| 3 | 55.00坪 | − | − | 募集終了 | − | − | − | ||
| 4 | 63.70坪 | − | − | 募集終了 | − | − | − | ||
| 5 | 63.70坪 | − | − | 募集終了 | − | − | − | ||
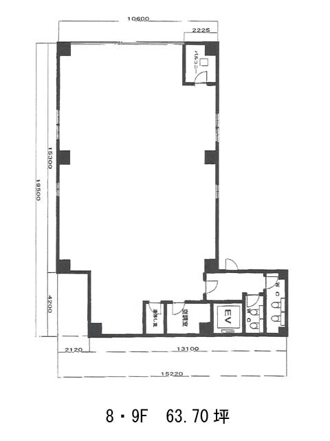
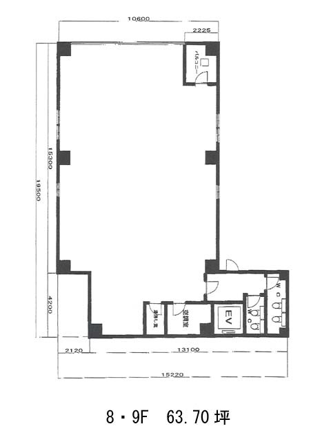
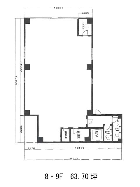
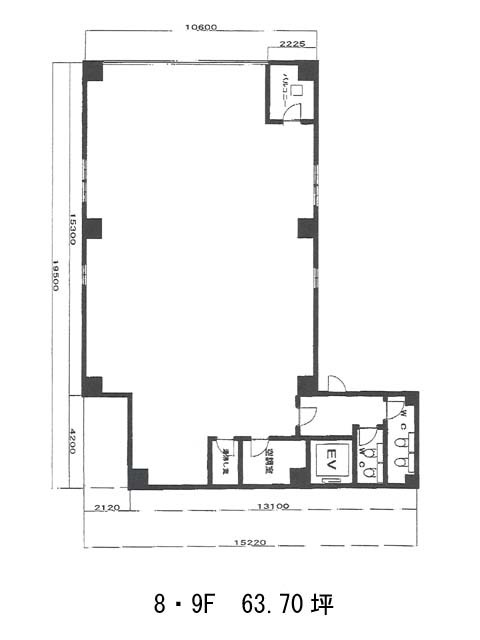
| 7 | 63.70坪 | − | − | 募集終了 | − | − | − | ||
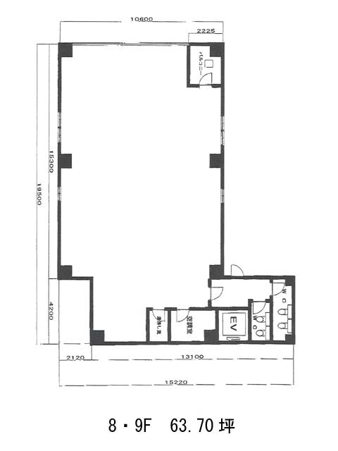
| 8 | 63.70坪 | − | − | 募集終了 | − | − | − | ||
| 9 | 63.70坪 | − | − | 募集終了 | − | − | − |


