タイムビル3の貸事務所・賃貸オフィス情報
タイムビル3の貸事務所・賃貸オフィス情報
タイムビル3
- エレベーター
- 個別空調
- 耐震確認中
タイムビル3の空室フロアリスト
| 階数 | 面積 | 賃料+共益費 | 保証金 | 入居時期 | 更新料 | 償却費 | 礼金 | 検討 | 平面図 | 詳細 |
|---|---|---|---|---|---|---|---|---|---|---|
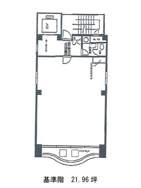
| 2 | 21.96坪 |
398,574円18,150円/坪
|
237万円
|
2026年7月上旬 | なし | 1ケ月 | なし |
タイムビル3の物件情報
タイムビル3(千代田区神田須田町)は神田駅徒歩3分、小川町駅徒歩4分、淡路町駅徒歩4分の賃貸オフィスです。
タイムビル3のアクセス
タイムビル3の募集終了区画
| 階数 | 面積 | 賃料+共益費 | 保証金 | 入居時期 | 更新料 | 償却費 | 礼金 | 平面図 | 詳細 |
|---|---|---|---|---|---|---|---|---|---|
| 3 | 21.96坪 | − | − | 募集終了 | − | − | − | ||
| 5 | 21.96坪 | − | − | 募集終了 | − | − | − | ||
| 6 | 21.96坪 | − | − | 募集終了 | − | − | − | ||
| 7 | 21.96坪 | − | − | 募集終了 | − | − | − | ||
| 8 | 21.96坪 | − | − | 募集終了 | − | − | − | ||
| 9 | 21.96坪 | − | − | 募集終了 | − | − | − |


