ルミエールお茶の水の貸事務所・賃貸オフィス情報
ルミエールお茶の水の貸事務所・賃貸オフィス情報
ルミエールお茶の水
- エレベーター
- 駐車場
- 新耐震基準
ルミエールお茶の水の空室フロアリスト
| 階数 | 面積 | 賃料+共益費 | 保証金 | 入居時期 | 更新料 | 償却費 | 礼金 | 検討 | 平面図 | 詳細 |
|---|---|---|---|---|---|---|---|---|---|---|
| 1 | 28.34坪 |
621,500円21,931円/坪
|
515万円
|
相談 | 新1ケ月 | 1ケ月 | 1ケ月 |
ルミエールお茶の水の物件情報
ルミエールお茶の水(千代田区神田淡路町)は新御茶ノ水駅徒歩3分、小川町駅徒歩3分、淡路町駅徒歩4分の賃貸オフィスです。
ルミエールお茶の水のアクセス
ルミエールお茶の水の募集終了区画
| 階数 | 面積 | 賃料+共益費 | 保証金 | 入居時期 | 更新料 | 償却費 | 礼金 | 平面図 | 詳細 |
|---|---|---|---|---|---|---|---|---|---|
| 1 | 16.27坪 | − | − | 募集終了 | − | − | − | ||
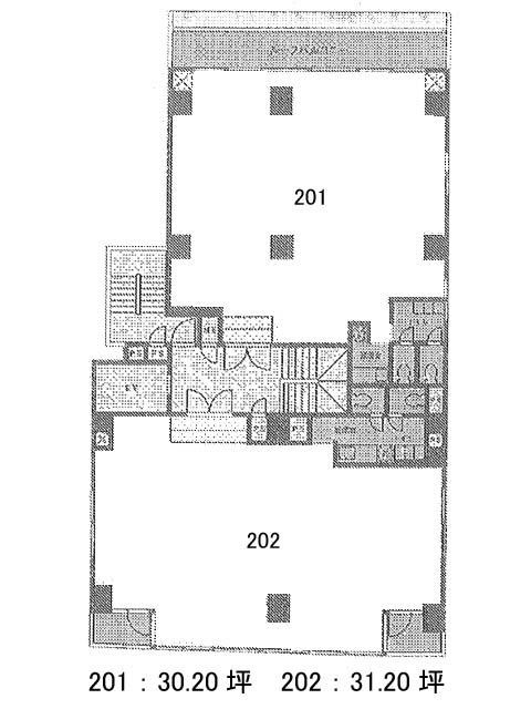
| 2 | 30.20坪 | − | − | 募集終了 | − | − | − | ||
| 2 | 31.20坪 | − | − | 募集終了 | − | − | − |


