損保ジャパン日本興亜神田淡路町ビルの貸事務所・賃貸オフィス情報
損保ジャパン日本興亜神田淡路町ビルの貸事務所・賃貸オフィス情報
損保ジャパン日本興亜神田淡路町ビル
- 物件番号
- 407-00057
- 所在地
- 東京都千代田区神田淡路町1-2-3
- 竣工
- 1989年11月
- 規模
- 地上8階/地下2階
- エレベーター
- 個別空調
- 駐車場
- 新耐震基準
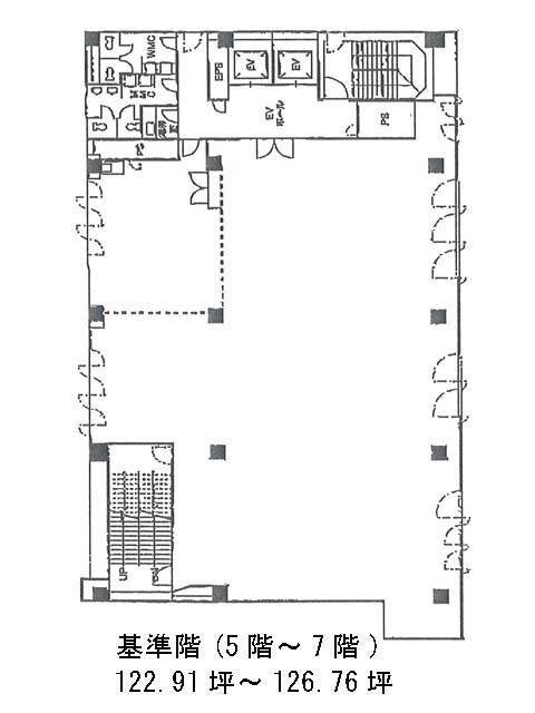
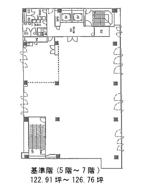
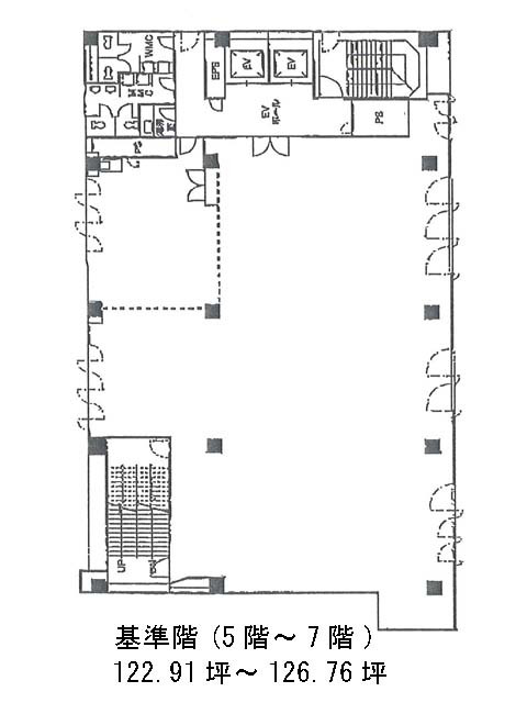
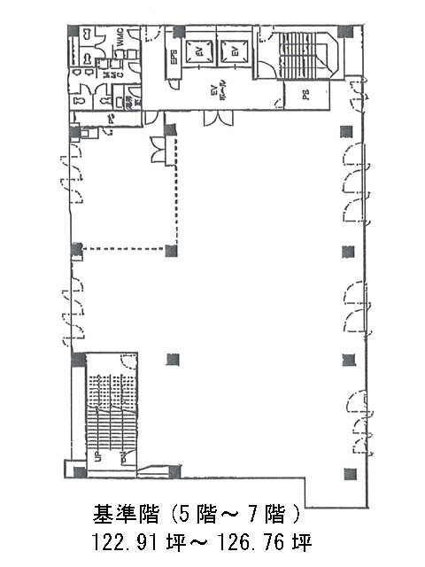
損保ジャパン日本興亜神田淡路町ビルの空室フロアリスト
| 階数 | 面積 | 賃料+共益費 | 保証金 | 入居時期 | 更新料 | 償却費 | 礼金 | 検討 | 平面図 | 詳細 |
|---|---|---|---|---|---|---|---|---|---|---|
| 8 | 93.30坪 |
応相談応相談
|
応相談
|
2026年6月 | なし | なし | なし |
損保ジャパン日本興亜神田淡路町ビルの物件情報
損保ジャパン日本興亜神田淡路町ビル(千代田区神田淡路町)は淡路町駅徒歩1分、小川町駅徒歩1分、新御茶ノ水駅徒歩5分の賃貸オフィスです。
損保ジャパン日本興亜神田淡路町ビルのアクセス
損保ジャパン日本興亜神田淡路町ビルの募集終了区画
| 階数 | 面積 | 賃料+共益費 | 保証金 | 入居時期 | 更新料 | 償却費 | 礼金 | 平面図 | 詳細 |
|---|---|---|---|---|---|---|---|---|---|
| 地下2 | 65.10坪 | − | − | 募集終了 | − | − | − | ||
| 地下1 | 65.12坪 | − | − | 募集終了 | − | − | − | ||
| 1 | 75.96坪 | − | − | 募集終了 | − | − | − | ||
| 2 | 129.36坪 | − | − | 募集終了 | − | − | − | ||
| 3 | 87.70坪 | − | − | 募集終了 | − | − | − | ||
| 3 | 20.63坪 | − | − | 募集終了 | − | − | − | ||
| 4 | 126.45坪 | − | − | 募集終了 | − | − | − | ||
| 5 | 126.75坪 | − | − | 募集終了 | − | − | − | ||
| 6 | 126.10坪 | − | − | 募集終了 | − | − | − |


