神田槇町トライアングルタワーズの貸事務所・賃貸オフィス情報
神田槇町トライアングルタワーズの貸事務所・賃貸オフィス情報
神田槇町トライアングルタワーズ
- エレベーター
- 個別空調
- 新耐震基準
神田槇町トライアングルタワーズの空室フロアリスト
| 階数 | 面積 | 賃料+共益費 | 保証金 | 入居時期 | 更新料 | 償却費 | 礼金 | 検討 | 平面図 | 詳細 |
|---|---|---|---|---|---|---|---|---|---|---|
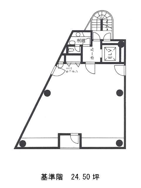
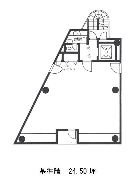
| 5 | 24.50坪 |
431,200円17,600円/坪
|
313万円
|
2026年4月上旬 | 新1ケ月 | なし | なし |
神田槇町トライアングルタワーズの物件情報
神田槇町トライアングルタワーズ(千代田区神田東紺屋町)は岩本町駅徒歩4分、神田駅徒歩5分、新日本橋駅徒歩6分の賃貸オフィスです。
神田槇町トライアングルタワーズのアクセス
神田槇町トライアングルタワーズの募集終了区画
| 階数 | 面積 | 賃料+共益費 | 保証金 | 入居時期 | 更新料 | 償却費 | 礼金 | 平面図 | 詳細 |
|---|---|---|---|---|---|---|---|---|---|
| 2 | 20.50坪 | − | − | 募集終了 | − | − | − | ||
| 3 | 24.50坪 | − | − | 募集終了 | − | − | − | ||
| 4 | 24.50坪 | − | − | 募集終了 | − | − | − | ||
| 6 | 24.50坪 | − | − | 募集終了 | − | − | − | ||
| 7 | 24.50坪 | − | − | 募集終了 | − | − | − | ||
| 8 | 24.50坪 | − | − | 募集終了 | − | − | − | ||
| 9 | 24.50坪 | − | − | 募集終了 | − | − | − | ||
| 10 | 24.50坪 | − | − | 募集終了 | − | − | − |


