VORT神保町Ⅲの貸事務所・賃貸オフィス情報
VORT神保町Ⅲの貸事務所・賃貸オフィス情報
VORT神保町Ⅲ
- 物件番号
- 418-00087
- 所在地
- 東京都千代田区西神田2-1-8
- 竣工
- 2019年3月
- 規模
- 地上12階
- エレベーター
- 個別空調
- 新耐震基準
VORT神保町Ⅲの空室フロアリスト
| 階数 | 面積 | 賃料+共益費 | 保証金 | 入居時期 | 更新料 | 償却費 | 礼金 | 検討 | 平面図 | 詳細 |
|---|---|---|---|---|---|---|---|---|---|---|
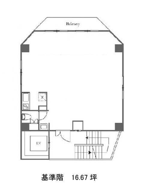
| 1 | 16.67坪 |
応相談応相談
|
応相談
|
2026年9月上旬 | 新1ケ月 | なし | 1ケ月 | |||
| 9 | 16.59坪 |
応相談応相談
|
応相談
|
2026年9月中旬 | 新1ケ月 | なし | 1ケ月 |
VORT神保町Ⅲの物件情報
VORT神保町Ⅲ(千代田区西神田)は水道橋駅徒歩5分、神保町駅徒歩6分、九段下駅徒歩10分の賃貸オフィスです。
VORT神保町Ⅲのアクセス
VORT神保町Ⅲの条件に近い物件
VORT神保町Ⅲの募集終了区画
| 階数 | 面積 | 賃料+共益費 | 保証金 | 入居時期 | 更新料 | 償却費 | 礼金 | 平面図 | 詳細 |
|---|---|---|---|---|---|---|---|---|---|
| 1-12 | 197.55坪 | − | − | 募集終了 | − | − | − | ||
| 2 | 16.67坪 | − | − | 募集終了 | − | − | − | ||
| 3 | 16.67坪 | − | − | 募集終了 | − | − | − | ||
| 4 | 16.59坪 | − | − | 募集終了 | − | − | − | ||
| 5 | 16.67坪 | − | − | 募集終了 | − | − | − | ||
| 6 | 16.67坪 | − | − | 募集終了 | − | − | − | ||
| 7 | 16.67坪 | − | − | 募集終了 | − | − | − | ||
| 8 | 16.67坪 | − | − | 募集終了 | − | − | − | ||
| 10 | 16.67坪 | − | − | 募集終了 | − | − | − | ||
| 11 | 16.12坪 | − | − | 募集終了 | − | − | − |


