0120-16-2331

【受付時間】平日 AM9:00〜PM7:00

メールでお問合せ
現在、空室がございません。

第3櫻井ビルの貸事務所・賃貸オフィス情報

第3櫻井ビルの貸事務所・賃貸オフィス情報

第3櫻井ビル

物件番号
420​-​00005
所在地
東京都千代田区鍛冶町2-2-3
最寄駅
神田駅 2分
竣工
1991年6月
規模
地上9階/地下1階
  • エレベーター
  • 個別空調
  • 新耐震基準

第3櫻井ビルの空室フロアリスト

現在、空室がございません。

第3櫻井ビルの物件情報

第三櫻井ビル(千代田区鍛冶町)は神田駅徒歩2分、新日本橋駅徒歩6分、三越前駅徒歩7分の賃貸オフィスです。

第3櫻井ビルのアクセス

第3櫻井ビルの募集終了区画

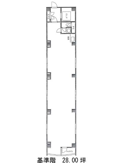
階数 面積 賃料+共益費 保証金 入居時期 更新料 償却費 礼金 平面図 詳細
2 28.00坪 募集終了
4 28.00坪 募集終了
5 28.00坪 募集終了
6 28.00坪 募集終了
7 28.00坪 募集終了
8 28.00坪 募集終了
9 28.00坪 募集終了

貸事務所・賃貸オフィスを最寄駅から探す

貸事務所・賃貸オフィスを最寄駅の沿線から探す

お問合せ このビルについて問い合わせる