内神田ビルの貸事務所・賃貸オフィス情報
内神田ビルの貸事務所・賃貸オフィス情報
内神田ビル
- エレベーター
- 個別空調
- 新耐震基準
内神田ビルの空室フロアリスト
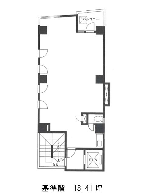
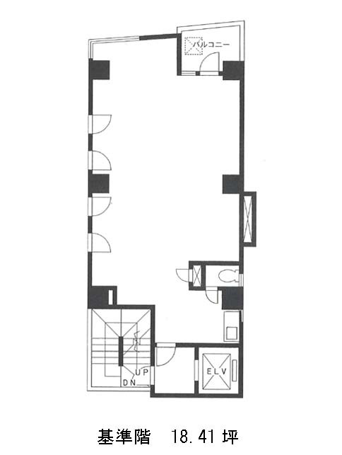
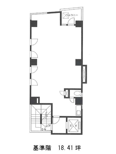
| 階数 | 面積 | 賃料+共益費 | 保証金 | 入居時期 | 更新料 | 償却費 | 礼金 | 検討 | 平面図 | 詳細 |
|---|---|---|---|---|---|---|---|---|---|---|
| 5 | 18.41坪 |
283,514円15,400円/坪
|
206万円
|
2026年7月下旬 | 新1ケ月 | 2ケ月 | なし |
内神田ビルの物件情報
内神田ビル(千代田区内神田)は小川町駅徒歩5分、淡路町駅徒歩5分、新御茶ノ水駅徒歩5分の賃貸オフィスです。
内神田ビルのアクセス
内神田ビルの条件に近い物件
内神田ビルの募集終了区画
| 階数 | 面積 | 賃料+共益費 | 保証金 | 入居時期 | 更新料 | 償却費 | 礼金 | 平面図 | 詳細 |
|---|---|---|---|---|---|---|---|---|---|
| 1 | 20.00坪 | − | − | 募集終了 | − | − | − | ||
| 2 | 18.41坪 | − | − | 募集終了 | − | − | − | ||
| 3 | 18.41坪 | − | − | 募集終了 | − | − | − | ||
| 4 | 18.41坪 | − | − | 募集終了 | − | − | − | ||
| 6 | 18.41坪 | − | − | 募集終了 | − | − | − | ||
| 7 | 18.41坪 | − | − | 募集終了 | − | − | − |


