内神田渋谷ビルの貸事務所・賃貸オフィス情報
内神田渋谷ビルの貸事務所・賃貸オフィス情報
内神田渋谷ビル
- エレベーター
- 個別空調
- 駐車場
- 新耐震基準
内神田渋谷ビルの空室フロアリスト
| 階数 | 面積 | 賃料+共益費 | 保証金 | 入居時期 | 更新料 | 償却費 | 礼金 | 検討 | 平面図 | 詳細 |
|---|---|---|---|---|---|---|---|---|---|---|
| 5 | 82.69坪 |
2,092,057円25,300円/坪
|
1041万円
|
2026年6月上旬 | 新1ケ月 | 1ケ月 | 1ケ月 |
内神田渋谷ビルの物件情報
内神田渋谷ビル(千代田区内神田)は神田駅徒歩3分、小川町駅徒歩5分、淡路町駅徒歩5分の賃貸オフィスです。
内神田渋谷ビルのアクセス
内神田渋谷ビルの募集終了区画
| 階数 | 面積 | 賃料+共益費 | 保証金 | 入居時期 | 更新料 | 償却費 | 礼金 | 平面図 | 詳細 |
|---|---|---|---|---|---|---|---|---|---|
| 地下1 | 35.00坪 | − | − | 募集終了 | − | − | − | ||
| 1 | 25.60坪 | − | − | 募集終了 | − | − | − | ||
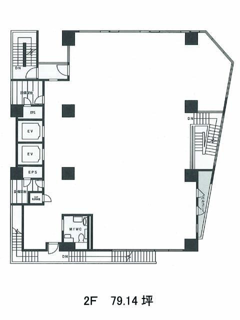
| 2 | 79.14坪 | − | − | 募集終了 | − | − | − | ||
| 3 | 72.00坪 | − | − | 募集終了 | − | − | − | ||
| 3 | 20.98坪 | − | − | 募集終了 | − | − | − | ||
| 3 | 20.55坪 | − | − | 募集終了 | − | − | − | ||
| 4 | 72.00坪 | − | − | 募集終了 | − | − | − | ||
| 4 | 20.98坪 | − | − | 募集終了 | − | − | − | ||
| 4 | 20.55坪 | − | − | 募集終了 | − | − | − | ||
| 6 | 82.79坪 | − | − | 募集終了 | − | − | − | ||
| 7 | 72.00坪 | − | − | 募集終了 | − | − | − | ||
| 8 | 82.79坪 | − | − | 募集終了 | − | − | − | ||
| 9 | 82.79坪 | − | − | 募集終了 | − | − | − |


