NOVEL WORK 半蔵門の貸事務所・賃貸オフィス情報
NOVEL WORK 半蔵門の貸事務所・賃貸オフィス情報
NOVEL WORK 半蔵門
- エレベーター
- 個別空調
- 新耐震基準
NOVEL WORK 半蔵門の空室フロアリスト
| 階数 | 面積 | 賃料+共益費 | 保証金 | 入居時期 | 更新料 | 償却費 | 礼金 | 検討 | 平面図 | 詳細 |
|---|---|---|---|---|---|---|---|---|---|---|
| 2 | 23.81坪 |
759,539円31,900円/坪
|
応相談
|
2026年5月上旬 | なし | なし | なし | |||
| 3 | 23.67坪 |
応相談応相談
|
応相談
|
2026年5月上旬 | なし | なし | なし | |||
| 4 | 23.67坪 |
755,073円31,900円/坪
|
応相談
|
即 | なし | なし | なし | |||
| 5 | 24.20坪 |
応相談応相談
|
応相談
|
2026年5月上旬 | なし | なし | なし | |||
| 6 | 24.20坪 |
応相談応相談
|
応相談
|
2026年5月上旬 | なし | なし | なし | |||
| 7 | 47.84坪 |
1,578,720円33,000円/坪
|
応相談
|
即 | なし | なし | なし |
NOVEL WORK 半蔵門の物件情報
NOVEL WORK 半蔵門(千代田区隼町)は半蔵門駅徒歩3分、永田町駅徒歩7分、麹町駅徒歩7分の賃貸オフィスです。
NOVEL WORK 半蔵門のアクセス
NOVEL WORK 半蔵門の募集終了区画
| 階数 | 面積 | 賃料+共益費 | 保証金 | 入居時期 | 更新料 | 償却費 | 礼金 | 平面図 | 詳細 |
|---|---|---|---|---|---|---|---|---|---|
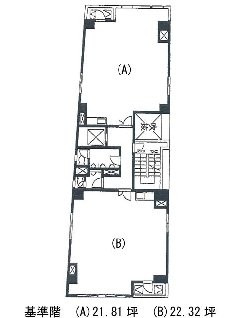
| 3 | 22.32坪 | − | − | 募集終了 | − | − | − | ||
| 3 | 21.81坪 | − | − | 募集終了 | − | − | − | ||
| 4 | 24.20坪 | − | − | 募集終了 | − | − | − | ||
| 5 | 21.81坪 | − | − | 募集終了 | − | − | − | ||
| 5 | 22.32坪 | − | − | 募集終了 | − | − | − | ||
| 6 | 22.32坪 | − | − | 募集終了 | − | − | − | ||
| 6 | 21.81坪 | − | − | 募集終了 | − | − | − |


