0120-16-2331

【受付時間】平日 AM9:00〜PM7:00

メールでお問合せ
現在、空室がございません。

文栄ビルの貸事務所・賃貸オフィス情報

文栄ビルの貸事務所・賃貸オフィス情報

文栄ビル

物件番号
427​-​00151
所在地
東京都千代田区飯田橋2-13-5
最寄駅
神保町駅 10分
後楽園駅 15分
竣工
1994年10月
規模
地上5階
  • エレベーター
  • 個別空調
  • 新耐震基準

文栄ビルの空室フロアリスト

現在、空室がございません。

文栄ビルの物件情報

文栄ビル(千代田区飯田橋)は飯田橋駅徒歩5分、九段下駅徒歩6分、水道橋駅徒歩7分の賃貸オフィスです。

文栄ビルのアクセス

文栄ビルの募集終了区画

階数 面積 賃料+共益費 保証金 入居時期 更新料 償却費 礼金 平面図 詳細
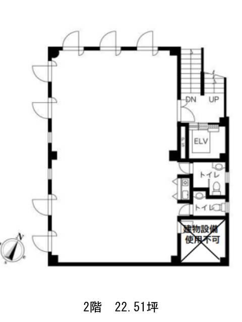
2 22.50坪 募集終了
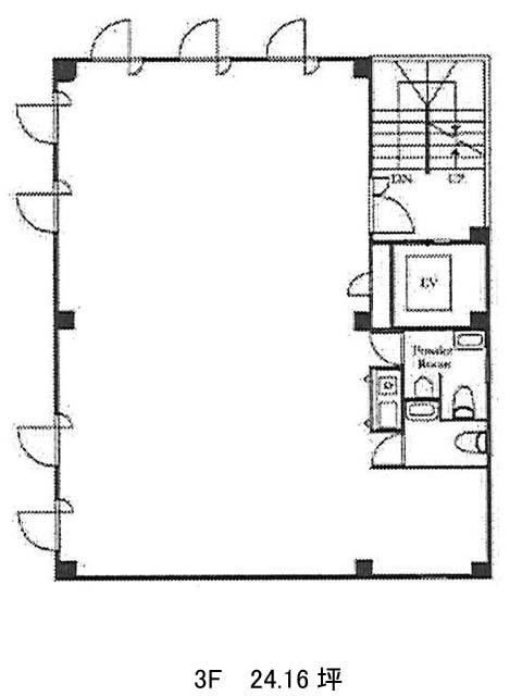
3 24.16坪 募集終了

貸事務所・賃貸オフィスを最寄駅から探す

貸事務所・賃貸オフィスを最寄駅の沿線から探す

お問合せ このビルについて問い合わせる