昭和ビルの貸事務所・賃貸オフィス情報
昭和ビルの貸事務所・賃貸オフィス情報
昭和ビル
- 物件番号
- 427-00173
- 所在地
- 東京都千代田区飯田橋1-12-6
- 竣工
- 1980年12月
- 規模
- 地上6階
- エレベーター
- 個別空調
- 旧耐震基準
昭和ビルの空室フロアリスト
| 階数 | 面積 | 賃料+共益費 | 保証金 | 入居時期 | 更新料 | 償却費 | 礼金 | 検討 | 平面図 | 詳細 |
|---|---|---|---|---|---|---|---|---|---|---|
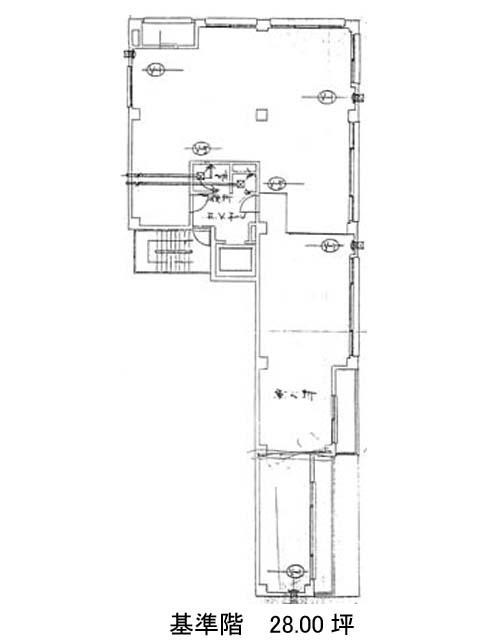
| 2 | 28.00坪 |
400,400円14,300円/坪
|
168万円
|
2026年4月中旬 | 新1ケ月 | なし | 2ケ月 | |||
| 2 | 16.00坪 |
228,800円14,300円/坪
|
96万円
|
2026年4月中旬 | 新1ケ月 | なし | 2ケ月 |
昭和ビルの物件情報
昭和ビル(千代田区飯田橋)は飯田橋駅徒歩4分、九段下駅徒歩6分、水道橋駅徒歩10分の賃貸オフィスです。
昭和ビルのアクセス
昭和ビルの募集終了区画
| 階数 | 面積 | 賃料+共益費 | 保証金 | 入居時期 | 更新料 | 償却費 | 礼金 | 平面図 | 詳細 |
|---|---|---|---|---|---|---|---|---|---|
| 3 | 28.00坪 | − | − | 募集終了 | − | − | − | ||
| 3 | 15.00坪 | − | − | 募集終了 | − | − | − | ||
| 4 | 22.00坪 | − | − | 募集終了 | − | − | − |


