ロックフィールドビルの貸事務所・賃貸オフィス情報
ロックフィールドビルの貸事務所・賃貸オフィス情報
ロックフィールドビル
- エレベーター
- 個別空調
- 新耐震基準
ロックフィールドビルの空室フロアリスト
| 階数 | 面積 | 賃料+共益費 | 保証金 | 入居時期 | 更新料 | 償却費 | 礼金 | 検討 | 平面図 | 詳細 |
|---|---|---|---|---|---|---|---|---|---|---|
| 3 | 33.40坪 |
845,020円25,300円/坪
|
534万円
|
相談 | なし | 10% | なし |
ロックフィールドビルの物件情報
ロックフィールドビル(千代田区飯田橋)は飯田橋駅徒歩1分、水道橋駅徒歩9分、九段下駅徒歩9分の賃貸オフィスです。
ロックフィールドビルのアクセス
ロックフィールドビルの条件に近い物件
ロックフィールドビルの募集終了区画
| 階数 | 面積 | 賃料+共益費 | 保証金 | 入居時期 | 更新料 | 償却費 | 礼金 | 平面図 | 詳細 |
|---|---|---|---|---|---|---|---|---|---|
| 2 | 55.00坪 | − | − | 募集終了 | − | − | − | ||
| 3 | 25.68坪 | − | − | 募集終了 | − | − | − | ||
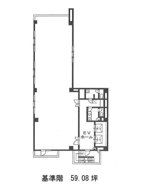
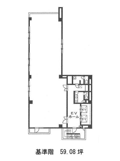
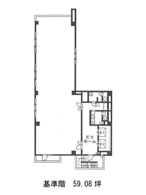
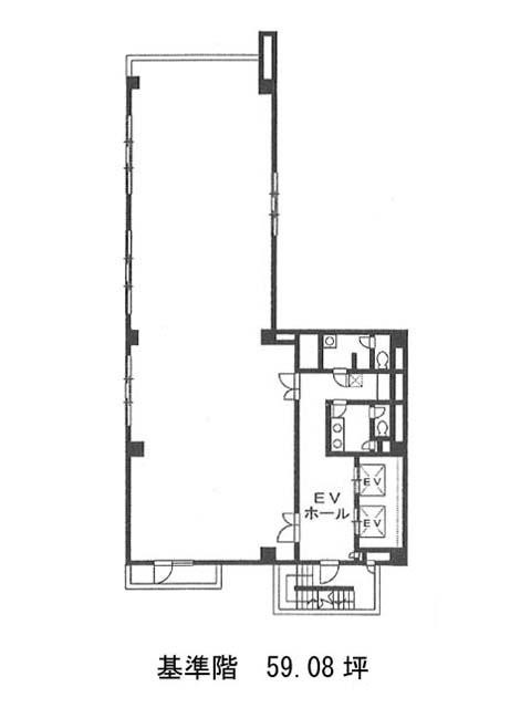
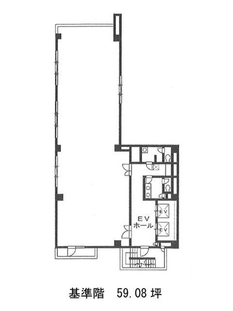
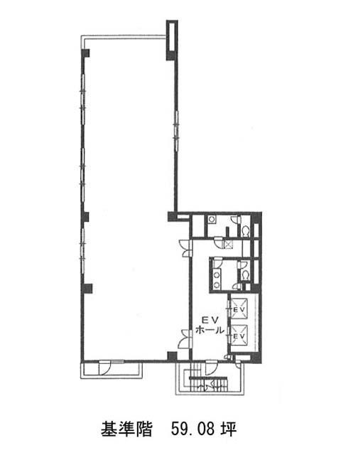
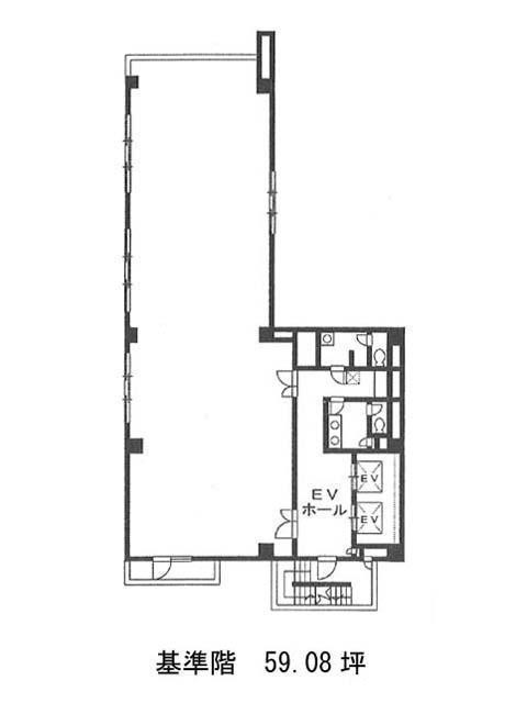
| 3 | 59.08坪 | − | − | 募集終了 | − | − | − | ||
| 4 | 59.08坪 | − | − | 募集終了 | − | − | − | ||
| 5 | 59.08坪 | − | − | 募集終了 | − | − | − | ||
| 6 | 59.08坪 | − | − | 募集終了 | − | − | − | ||
| 7 | 59.08坪 | − | − | 募集終了 | − | − | − | ||
| 8 | 59.08坪 | − | − | 募集終了 | − | − | − | ||
| 9 | 59.08坪 | − | − | 募集終了 | − | − | − |


