東専堂ビルの貸事務所・賃貸オフィス情報
東専堂ビルの貸事務所・賃貸オフィス情報
東専堂ビル
- 物件番号
- 427-00032
- 所在地
- 東京都千代田区飯田橋1-5-7
- 竣工
- 1972年2月
- 規模
- 地上7階/地下1階
- エレベーター
- 個別空調
- 旧耐震基準
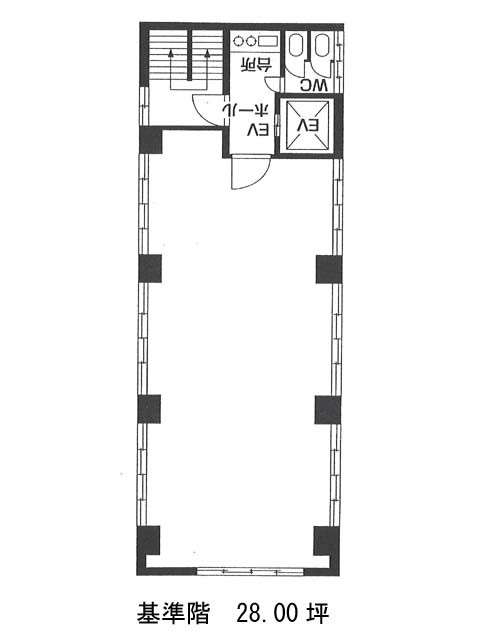
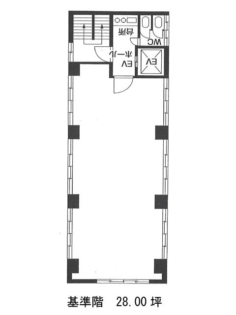
東専堂ビルの空室フロアリスト
| 階数 | 面積 | 賃料+共益費 | 保証金 | 入居時期 | 更新料 | 償却費 | 礼金 | 検討 | 平面図 | 詳細 |
|---|---|---|---|---|---|---|---|---|---|---|
| 3 | 28.00坪 |
350,000円12,500円/坪
|
175万円
|
即 | 新1ケ月 | 2ケ月 | なし | |||
| 7 | 28.00坪 |
370,000円13,214円/坪
|
185万円
|
即 | 新1ケ月 | 2ケ月 | なし |
東専堂ビルの物件情報
東専堂ビル(千代田区飯田橋)は飯田橋駅徒歩5分、九段下駅徒歩5分、水道橋駅徒歩9分の賃貸オフィスです。
東専堂ビルのアクセス
東専堂ビルの募集終了区画
| 階数 | 面積 | 賃料+共益費 | 保証金 | 入居時期 | 更新料 | 償却費 | 礼金 | 平面図 | 詳細 |
|---|---|---|---|---|---|---|---|---|---|
| 2 | 28.00坪 | − | − | 募集終了 | − | − | − | ||
| 5 | 28.00坪 | − | − | 募集終了 | − | − | − |


