恩田ビルの貸事務所・賃貸オフィス情報
恩田ビルの貸事務所・賃貸オフィス情報
恩田ビル
- エレベーター
- 個別空調
- 旧耐震基準
恩田ビルの空室フロアリスト
| 階数 | 面積 | 賃料+共益費 | 保証金 | 入居時期 | 更新料 | 償却費 | 礼金 | 検討 | 平面図 | 詳細 |
|---|---|---|---|---|---|---|---|---|---|---|
| 5 | 22.83坪 |
302,537円13,251円/坪
|
150万円
|
即 | 新1ケ月 | 1ケ月 | 1ケ月 |
恩田ビルの物件情報
恩田ビル(千代田区六番町)は麹町駅徒歩2分、市ヶ谷駅徒歩5分、四ツ谷駅徒歩8分の賃貸オフィスです。
恩田ビルのアクセス
恩田ビルの条件に近い物件
恩田ビルの募集終了区画
| 階数 | 面積 | 賃料+共益費 | 保証金 | 入居時期 | 更新料 | 償却費 | 礼金 | 平面図 | 詳細 |
|---|---|---|---|---|---|---|---|---|---|
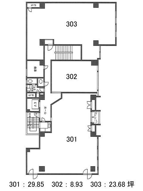
| 3 | 29.85坪 | − | − | 募集終了 | − | − | − | ||
| 3 | 23.68坪 | − | − | 募集終了 | − | − | − | ||
| 4 | 38.75坪 | − | − | 募集終了 | − | − | − | ||
| 4 | 39.74坪 | − | − | 募集終了 | − | − | − | ||
| 4 | 22.84坪 | − | − | 募集終了 | − | − | − | ||
| 4 | 16.91坪 | − | − | 募集終了 | − | − | − | ||
| 5 | 16.91坪 | − | − | 募集終了 | − | − | − | ||
| 6 | 28.50坪 | − | − | 募集終了 | − | − | − |


