0120-16-2331

【受付時間】平日 AM9:00〜PM7:00

メールでお問合せ
現在、空室がございません。

MKビルの貸事務所・賃貸オフィス情報

MKビルの貸事務所・賃貸オフィス情報

MKビル

物件番号
561​-​00145
所在地
東京都台東区台東2-3-2
最寄駅
末広町駅 10分
秋葉原駅 11分
浅草橋駅 12分
竣工
1995年10月
規模
地上10階
  • エレベーター
  • 個別空調
  • 新耐震基準

MKビルの空室フロアリスト

現在、空室がございません。

MKビルの物件情報

MKビル(台東区台東)は新御徒町駅徒歩7分、仲御徒町駅徒歩9分、末広町駅徒歩10分の賃貸オフィスです。

MKビルのアクセス

MKビルの募集終了区画

階数 面積 賃料+共益費 保証金 入居時期 更新料 償却費 礼金 平面図 詳細
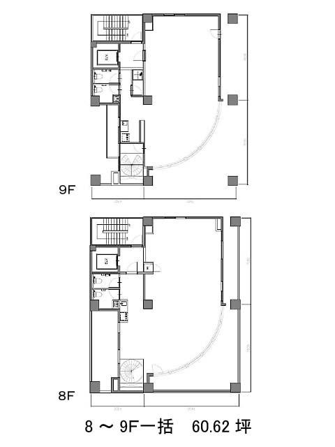
8-9 60.62坪 募集終了
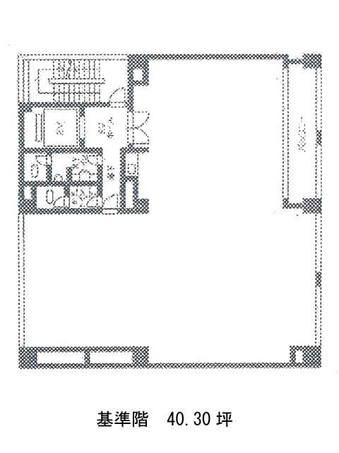
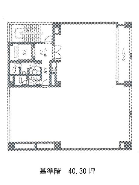
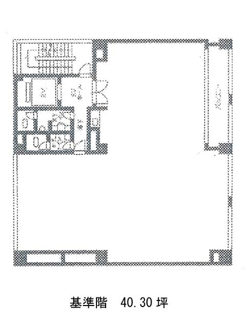
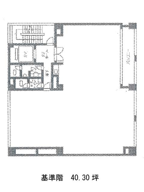
4 40.30坪 募集終了
5 40.30坪 募集終了
6 40.30坪 募集終了
7 40.30坪 募集終了

貸事務所・賃貸オフィスを最寄駅から探す

貸事務所・賃貸オフィスを最寄駅の沿線から探す

お問合せ このビルについて問い合わせる