現在、空室がございません。
青山商事ビルの貸事務所・賃貸オフィス情報
青山商事ビルの貸事務所・賃貸オフィス情報
青山商事ビル
- エレベーター
- 新耐震基準
青山商事ビルの空室フロアリスト
現在、空室がございません。
青山商事ビルの物件情報
青山商事ビル(台東区台東)は仲御徒町駅徒歩9分、新御徒町駅徒歩9分、秋葉原駅徒歩9分の賃貸オフィスです。
青山商事ビルのアクセス
青山商事ビルの募集終了区画
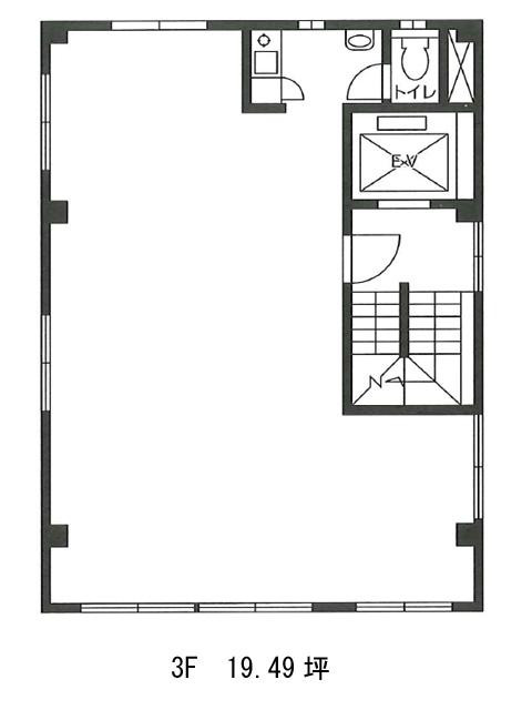
| 階数 | 面積 | 賃料+共益費 | 保証金 | 入居時期 | 更新料 | 償却費 | 礼金 | 平面図 | 詳細 |
|---|---|---|---|---|---|---|---|---|---|
| 3 | 19.49坪 | − | − | 募集終了 | − | − | − |


