東京ミシン会館ビルの貸事務所・賃貸オフィス情報
東京ミシン会館ビルの貸事務所・賃貸オフィス情報
東京ミシン会館ビル
- エレベーター
- 個別空調
- 新耐震基準
東京ミシン会館ビルの空室フロアリスト
| 階数 | 面積 | 賃料+共益費 | 保証金 | 入居時期 | 更新料 | 償却費 | 礼金 | 検討 | 平面図 | 詳細 |
|---|---|---|---|---|---|---|---|---|---|---|
| 7 | 16.33坪 |
215,556円13,200円/坪
|
107万円
|
即 | 新1ケ月 | 2ケ月 | なし |
東京ミシン会館ビルの物件情報
東京ミシン会館ビル(台東区台東)は新御徒町駅徒歩9分、秋葉原駅徒歩9分、仲御徒町駅徒歩10分の賃貸オフィスです。
東京ミシン会館ビルのアクセス
東京ミシン会館ビルの募集終了区画
| 階数 | 面積 | 賃料+共益費 | 保証金 | 入居時期 | 更新料 | 償却費 | 礼金 | 平面図 | 詳細 |
|---|---|---|---|---|---|---|---|---|---|
| 2 | 59.40坪 | − | − | 募集終了 | − | − | − | ||
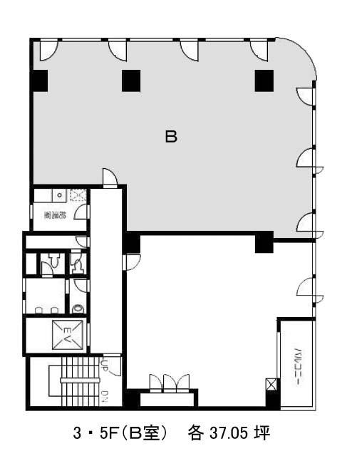
| 3 | 37.05坪 | − | − | 募集終了 | − | − | − | ||
| 4 | 59.40坪 | − | − | 募集終了 | − | − | − | ||
| 5 | 37.05坪 | − | − | 募集終了 | − | − | − | ||
| 7 | 17.77坪 | − | − | 募集終了 | − | − | − | ||
| 8 | 22.89坪 | − | − | 募集終了 | − | − | − |


