東西ビル東上野の貸事務所・賃貸オフィス情報
東西ビル東上野の貸事務所・賃貸オフィス情報
東西ビル東上野
- エレベーター
- 個別空調
- 新耐震基準
東西ビル東上野の空室フロアリスト
| 階数 | 面積 | 賃料+共益費 | 保証金 | 入居時期 | 更新料 | 償却費 | 礼金 | 検討 | 平面図 | 詳細 |
|---|---|---|---|---|---|---|---|---|---|---|
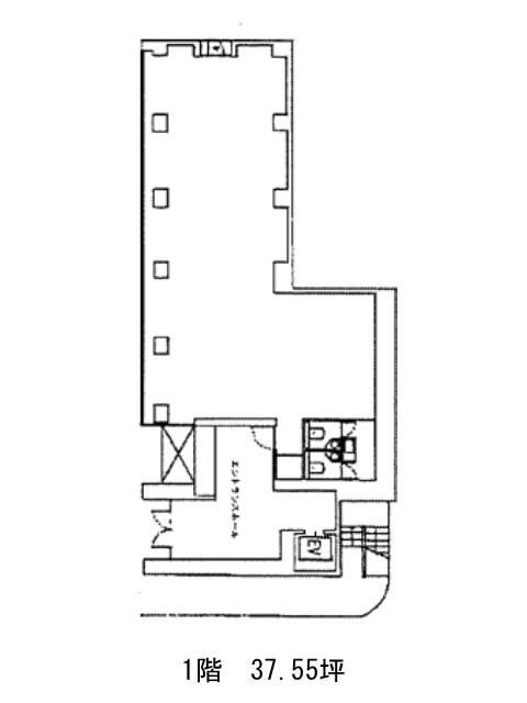
| 1 | 37.55坪 |
594,000円15,820円/坪
|
294万円
|
即 | 新1ケ月 | 2ケ月 | なし |
東西ビル東上野の物件情報
東西ビル東上野(台東区東上野)は上野駅徒歩5分、稲荷町駅徒歩6分、新御徒町駅徒歩11分の賃貸オフィスです。
東西ビル東上野のアクセス
東西ビル東上野の募集終了区画
| 階数 | 面積 | 賃料+共益費 | 保証金 | 入居時期 | 更新料 | 償却費 | 礼金 | 平面図 | 詳細 |
|---|---|---|---|---|---|---|---|---|---|
| 2 | 50.15坪 | − | − | 募集終了 | − | − | − | ||
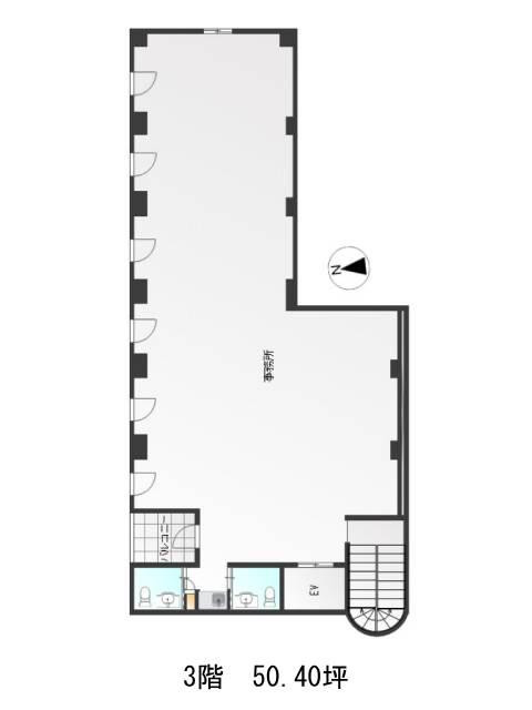
| 3 | 50.40坪 | − | − | 募集終了 | − | − | − | ||
| 4 | 50.40坪 | − | − | 募集終了 | − | − | − | ||
| 5 | 50.40坪 | − | − | 募集終了 | − | − | − | ||
| 7 | 29.62坪 | − | − | 募集終了 | − | − | − |


