諏訪ビルの貸事務所・賃貸オフィス情報
諏訪ビルの貸事務所・賃貸オフィス情報
諏訪ビル
- エレベーター
- 個別空調
- 新耐震基準
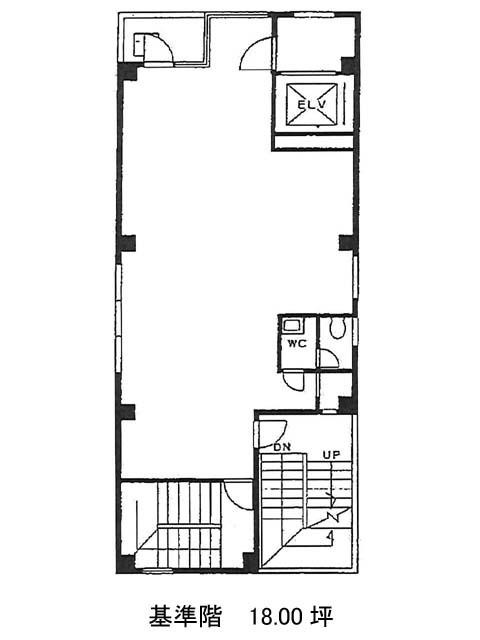
諏訪ビルの空室フロアリスト
| 階数 | 面積 | 賃料+共益費 | 保証金 | 入居時期 | 更新料 | 償却費 | 礼金 | 検討 | 平面図 | 詳細 |
|---|---|---|---|---|---|---|---|---|---|---|
| 3 | 18.00坪 |
188,100円10,450円/坪
|
64万円
|
即 | 新1ケ月 | なし | 2ケ月 |
諏訪ビルの物件情報
諏訪ビル(台東区北上野)は上野駅徒歩6分、入谷駅徒歩6分、稲荷町駅徒歩10分の賃貸オフィスです。
諏訪ビルのアクセス
諏訪ビルの条件に近い物件
諏訪ビルの募集終了区画
| 階数 | 面積 | 賃料+共益費 | 保証金 | 入居時期 | 更新料 | 償却費 | 礼金 | 平面図 | 詳細 |
|---|---|---|---|---|---|---|---|---|---|
| 1 | 17.71坪 | − | − | 募集終了 | − | − | − | ||
| 2 | 18.00坪 | − | − | 募集終了 | − | − | − | ||
| 4 | 18.00坪 | − | − | 募集終了 | − | − | − | ||
| 5 | 18.00坪 | − | − | 募集終了 | − | − | − | ||
| 6 | 20.36坪 | − | − | 募集終了 | − | − | − |


