幸永ビル2号館の貸事務所・賃貸オフィス情報
幸永ビル2号館の貸事務所・賃貸オフィス情報
幸永ビル2号館
- エレベーター
- 新耐震基準
幸永ビル2号館の空室フロアリスト
| 階数 | 面積 | 賃料+共益費 | 保証金 | 入居時期 | 更新料 | 償却費 | 礼金 | 検討 | 平面図 | 詳細 |
|---|---|---|---|---|---|---|---|---|---|---|
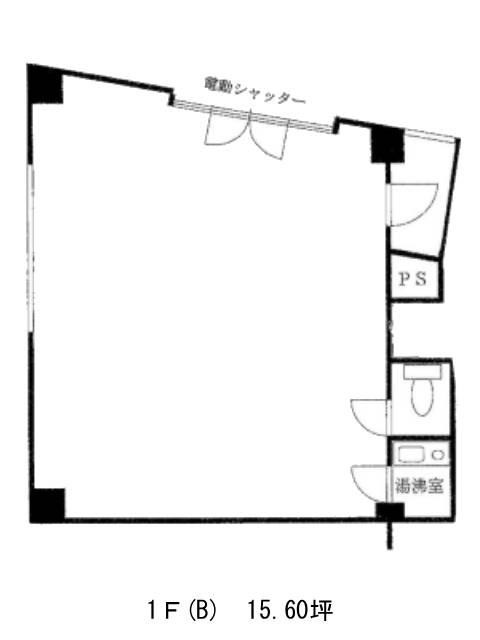
| 1 | 15.60坪 |
165,011円10,577円/坪
|
60万円
|
相談 | 新1.5ケ月 | 1ケ月 | 1ケ月 |
幸永ビル2号館の物件情報
幸永ビル2号館(大田区西糀谷)は糀谷駅徒歩6分、京急蒲田駅徒歩12分、大鳥居駅徒歩15分の賃貸オフィスです。
幸永ビル2号館のアクセス
幸永ビル2号館の募集終了区画
| 階数 | 面積 | 賃料+共益費 | 保証金 | 入居時期 | 更新料 | 償却費 | 礼金 | 平面図 | 詳細 |
|---|---|---|---|---|---|---|---|---|---|
| 1 | 30.19坪 | − | − | 募集終了 | − | − | − |


