中島ゴールドビルの貸事務所・賃貸オフィス情報
中島ゴールドビルの貸事務所・賃貸オフィス情報
中島ゴールドビル
- 物件番号
- 633-00122
- 所在地
- 東京都中央区京橋3-13-10
- 竣工
- 1984年8月
- 規模
- 地上10階/地下1階
- エレベーター
- 個別空調
- 駐車場
- 新耐震基準
中島ゴールドビルの空室フロアリスト
| 階数 | 面積 | 賃料+共益費 | 保証金 | 入居時期 | 更新料 | 償却費 | 礼金 | 検討 | 平面図 | 詳細 |
|---|---|---|---|---|---|---|---|---|---|---|
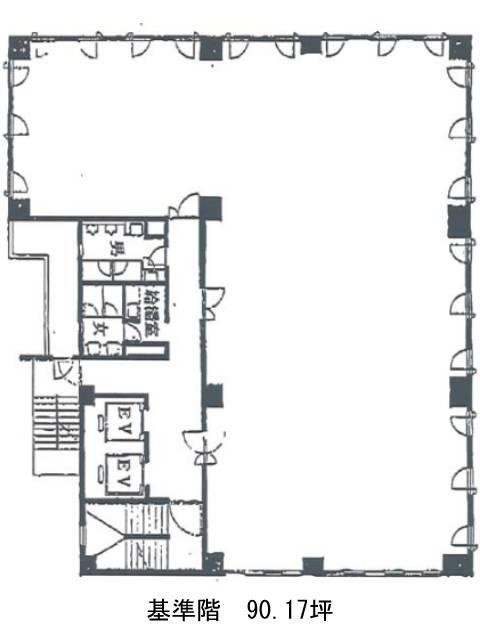
| 9 | 90.17坪 |
応相談応相談
|
応相談
|
2026年3月上旬 | なし | 10% | なし |
中島ゴールドビルの物件情報
中島ゴールドビル(中央区京橋)は宝町駅徒歩1分、京橋駅徒歩3分、八丁堀駅徒歩7分の賃貸オフィスです。
中島ゴールドビルのアクセス
中島ゴールドビルの募集終了区画
| 階数 | 面積 | 賃料+共益費 | 保証金 | 入居時期 | 更新料 | 償却費 | 礼金 | 平面図 | 詳細 |
|---|---|---|---|---|---|---|---|---|---|
| 3 | 94.76坪 | − | − | 募集終了 | − | − | − | ||
| 4 | 94.76坪 | − | − | 募集終了 | − | − | − | ||
| 5 | 90.17坪 | − | − | 募集終了 | − | − | − | ||
| 6 | 94.76坪 | − | − | 募集終了 | − | − | − | ||
| 6 | 90.17坪 | − | − | 募集終了 | − | − | − | ||
| 8 | 90.17坪 | − | − | 募集終了 | − | − | − |


