銀一パークビルの貸事務所・賃貸オフィス情報
銀一パークビルの貸事務所・賃貸オフィス情報
銀一パークビル
- エレベーター
- 個別空調
- 新耐震基準
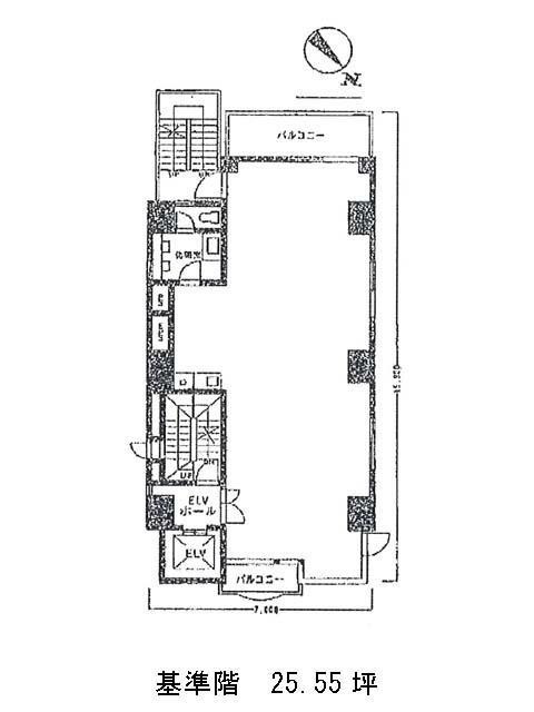
銀一パークビルの空室フロアリスト
| 階数 | 面積 | 賃料+共益費 | 保証金 | 入居時期 | 更新料 | 償却費 | 礼金 | 検討 | 平面図 | 詳細 |
|---|---|---|---|---|---|---|---|---|---|---|
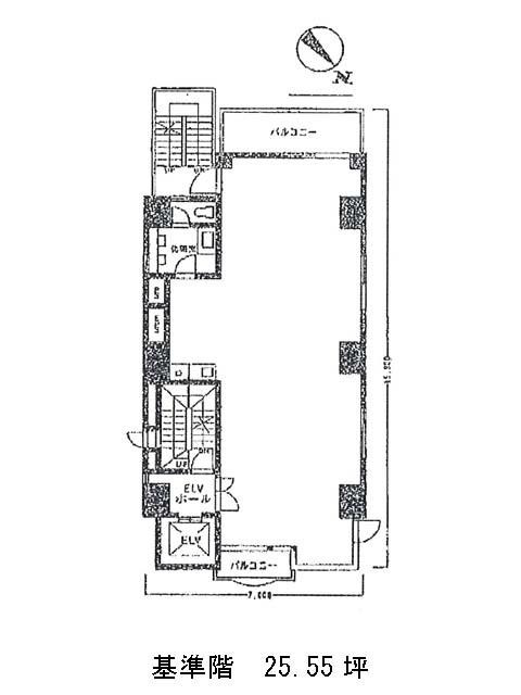
| 4 | 25.55坪 |
421,575円16,500円/坪
|
191万円
|
2026年1月中旬 | 新1ケ月 | 2ケ月 | なし |
銀一パークビルの物件情報
銀一パークビル(中央区銀座)は新富町駅徒歩4分、宝町駅徒歩5分、銀座一丁目駅徒歩5分の賃貸オフィスです。
銀一パークビルのアクセス
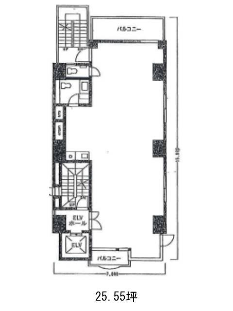
銀一パークビルの募集終了区画
| 階数 | 面積 | 賃料+共益費 | 保証金 | 入居時期 | 更新料 | 償却費 | 礼金 | 平面図 | 詳細 |
|---|---|---|---|---|---|---|---|---|---|
| 2 | 25.55坪 | − | − | 募集終了 | − | − | − | ||
| 3 | 25.55坪 | − | − | 募集終了 | − | − | − | ||
| 5 | 25.55坪 | − | − | 募集終了 | − | − | − | ||
| 6 | 25.55坪 | − | − | 募集終了 | − | − | − | ||
| 7 | 25.55坪 | − | − | 募集終了 | − | − | − | ||
| 9 | 25.55坪 | − | − | 募集終了 | − | − | − |


