銀座KMビルの貸事務所・賃貸オフィス情報
銀座KMビルの貸事務所・賃貸オフィス情報
銀座KMビル
- エレベーター
- 個別空調
- 新耐震基準
銀座KMビルの空室フロアリスト
| 階数 | 面積 | 賃料+共益費 | 保証金 | 入居時期 | 更新料 | 償却費 | 礼金 | 検討 | 平面図 | 詳細 |
|---|---|---|---|---|---|---|---|---|---|---|
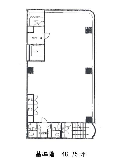
| 6 | 48.75坪 |
1,099,312円22,550円/坪
|
828万円
|
相談 | 新1ケ月 | なし | なし |
銀座KMビルの物件情報
銀座KMビル(中央区銀座)は築地市場駅徒歩4分、汐留駅徒歩6分、東銀座駅徒歩6分の賃貸オフィスです。
銀座KMビルのアクセス
銀座KMビルの条件に近い物件
銀座KMビルの募集終了区画
| 階数 | 面積 | 賃料+共益費 | 保証金 | 入居時期 | 更新料 | 償却費 | 礼金 | 平面図 | 詳細 |
|---|---|---|---|---|---|---|---|---|---|
| 1 | 23.50坪 | − | − | 募集終了 | − | − | − | ||
| 2 | 48.75坪 | − | − | 募集終了 | − | − | − | ||
| 3 | 48.75坪 | − | − | 募集終了 | − | − | − | ||
| 4 | 48.75坪 | − | − | 募集終了 | − | − | − | ||
| 5 | 48.75坪 | − | − | 募集終了 | − | − | − | ||
| 7 | 48.75坪 | − | − | 募集終了 | − | − | − | ||
| 8 | 48.75坪 | − | − | 募集終了 | − | − | − | ||
| 9 | 48.75坪 | − | − | 募集終了 | − | − | − |


