SHビルの貸事務所・賃貸オフィス情報
SHビルの貸事務所・賃貸オフィス情報
SHビル
- 物件番号
- 637-00121
- 所在地
- 東京都中央区新川2-9-9
- 竣工
- 1988年3月
- 規模
- 地上7階/地下1階
- エレベーター
- 個別空調
- 駐車場
- 新耐震基準
SHビルの空室フロアリスト
| 階数 | 面積 | 賃料+共益費 | 保証金 | 入居時期 | 更新料 | 償却費 | 礼金 | 検討 | 平面図 | 詳細 |
|---|---|---|---|---|---|---|---|---|---|---|
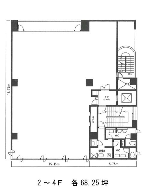
| 2 | 68.25坪 |
975,975円14,300円/坪
|
573万円
|
2026年5月上旬 | 新1ケ月 | 1ケ月 | なし |
SHビルの物件情報
SHビル(中央区新川)は八丁堀駅徒歩3分、茅場町駅徒歩7分、宝町駅徒歩12分の賃貸オフィスです。
SHビルのアクセス
SHビルの募集終了区画
| 階数 | 面積 | 賃料+共益費 | 保証金 | 入居時期 | 更新料 | 償却費 | 礼金 | 平面図 | 詳細 |
|---|---|---|---|---|---|---|---|---|---|
| 1 | 31.06坪 | − | − | 募集終了 | − | − | − | ||
| 3 | 68.25坪 | − | − | 募集終了 | − | − | − | ||
| 4 | 68.25坪 | − | − | 募集終了 | − | − | − | ||
| 5 | 61.92坪 | − | − | 募集終了 | − | − | − | ||
| 6 | 53.04坪 | − | − | 募集終了 | − | − | − | ||
| 7 | 44.29坪 | − | − | 募集終了 | − | − | − |


