新富太陽ビルの貸事務所・賃貸オフィス情報
新富太陽ビルの貸事務所・賃貸オフィス情報
新富太陽ビル
- エレベーター
- 個別空調
- 新耐震基準
新富太陽ビルの空室フロアリスト
| 階数 | 面積 | 賃料+共益費 | 保証金 | 入居時期 | 更新料 | 償却費 | 礼金 | 検討 | 平面図 | 詳細 |
|---|---|---|---|---|---|---|---|---|---|---|
| 5 | 19.71坪 |
433,620円22,000円/坪
|
201万円
|
即 | 新1ケ月 | 1ケ月 | なし |
新富太陽ビルの物件情報
新富太陽ビル(中央区新富)は新富町駅徒歩2分、宝町駅徒歩7分、築地駅徒歩7分の賃貸オフィスです。
新富太陽ビルのアクセス
新富太陽ビルの募集終了区画
| 階数 | 面積 | 賃料+共益費 | 保証金 | 入居時期 | 更新料 | 償却費 | 礼金 | 平面図 | 詳細 |
|---|---|---|---|---|---|---|---|---|---|
| 地下1 | 20.23坪 | − | − | 募集終了 | − | − | − | ||
| 2 | 19.71坪 | − | − | 募集終了 | − | − | − | ||
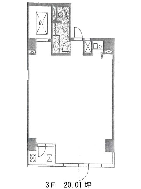
| 3 | 20.01坪 | − | − | 募集終了 | − | − | − | ||
| 4 | 19.71坪 | − | − | 募集終了 | − | − | − | ||
| 6 | 19.71坪 | − | − | 募集終了 | − | − | − |


