アルファ新富ビルの貸事務所・賃貸オフィス情報
アルファ新富ビルの貸事務所・賃貸オフィス情報
アルファ新富ビル
- エレベーター
- 個別空調
- 新耐震基準
アルファ新富ビルの空室フロアリスト
| 階数 | 面積 | 賃料+共益費 | 保証金 | 入居時期 | 更新料 | 償却費 | 礼金 | 検討 | 平面図 | 詳細 |
|---|---|---|---|---|---|---|---|---|---|---|
| 5 | 33.58坪 |
561,001円16,706円/坪
|
164万円
|
相談 | 新1ケ月 | 20% | なし |
アルファ新富ビルの物件情報
アルファ新富ビル(中央区新富)は八丁堀駅徒歩3分、新富町駅徒歩5分、築地駅徒歩7分の賃貸オフィスです。
アルファ新富ビルのアクセス
アルファ新富ビルの募集終了区画
| 階数 | 面積 | 賃料+共益費 | 保証金 | 入居時期 | 更新料 | 償却費 | 礼金 | 平面図 | 詳細 |
|---|---|---|---|---|---|---|---|---|---|
| 1 | 32.29坪 | − | − | 募集終了 | − | − | − | ||
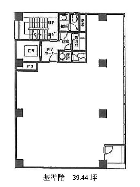
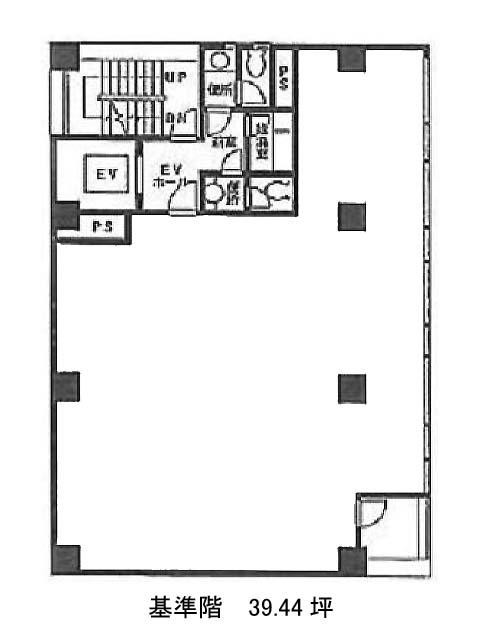
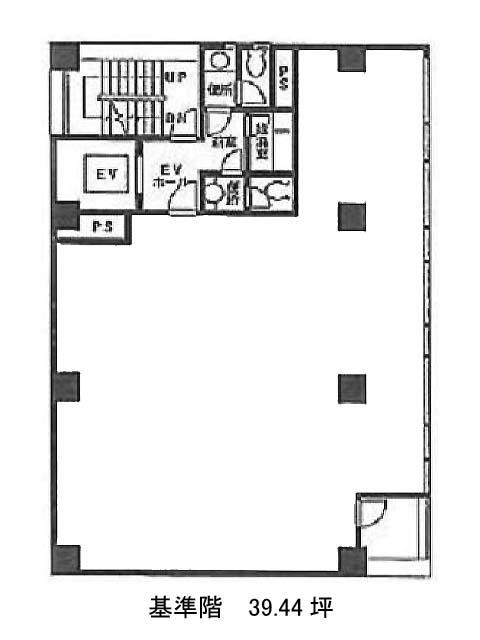
| 2 | 39.44坪 | − | − | 募集終了 | − | − | − | ||
| 3 | 39.44坪 | − | − | 募集終了 | − | − | − | ||
| 4 | 39.44坪 | − | − | 募集終了 | − | − | − | ||
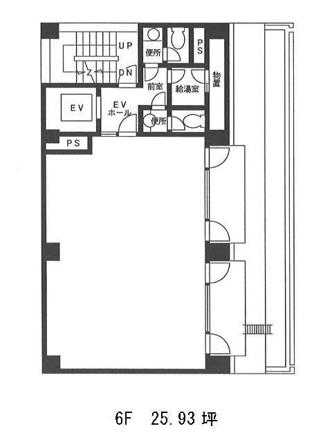
| 6 | 25.93坪 | − | − | 募集終了 | − | − | − | ||
| 7 | 15.19坪 | − | − | 募集終了 | − | − | − |


