現在、空室がございません。
フォルテ新富町ビルの貸事務所・賃貸オフィス情報
フォルテ新富町ビルの貸事務所・賃貸オフィス情報
フォルテ新富町ビル
- エレベーター
- 個別空調
- 耐震補強済み
フォルテ新富町ビルの空室フロアリスト
現在、空室がございません。
フォルテ新富町ビルの物件情報
フォルテ新富町ビル(中央区新富)は新富町駅徒歩4分、八丁堀駅徒歩5分、宝町駅徒歩6分の賃貸オフィスです。
フォルテ新富町ビルのアクセス
フォルテ新富町ビルの募集終了区画
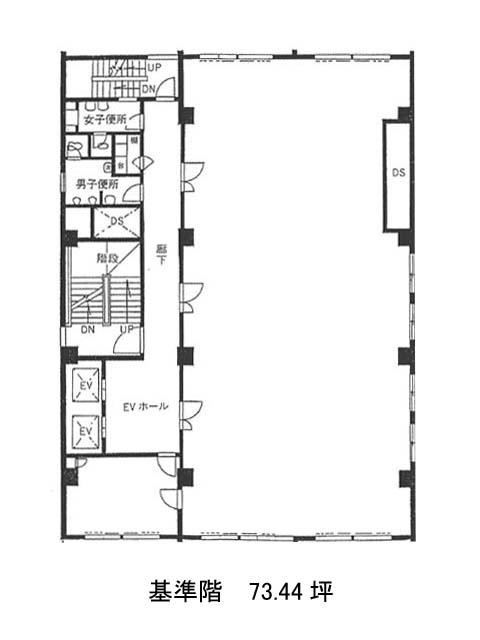
| 階数 | 面積 | 賃料+共益費 | 保証金 | 入居時期 | 更新料 | 償却費 | 礼金 | 平面図 | 詳細 |
|---|---|---|---|---|---|---|---|---|---|
| 1 | 58.59坪 | − | − | 募集終了 | − | − | − | ||
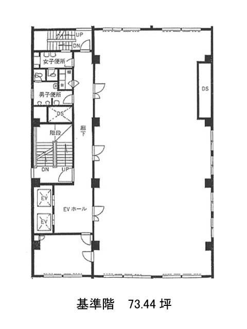
| 2 | 73.44坪 | − | − | 募集終了 | − | − | − | ||
| 3 | 73.44坪 | − | − | 募集終了 | − | − | − | ||
| 5 | 73.44坪 | − | − | 募集終了 | − | − | − | ||
| 6 | 73.44坪 | − | − | 募集終了 | − | − | − | ||
| 7 | 73.44坪 | − | − | 募集終了 | − | − | − | ||
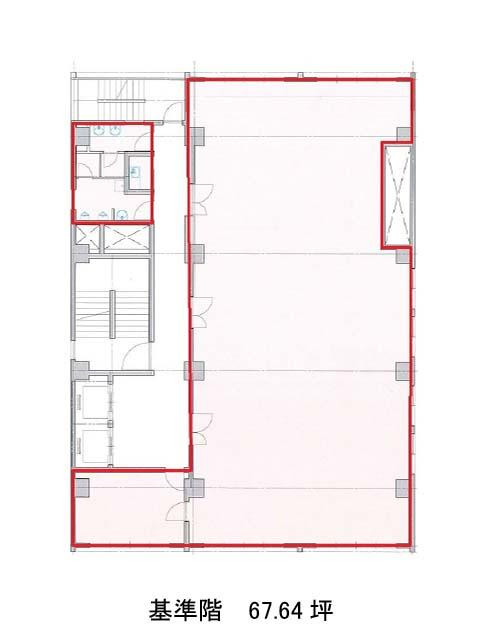
| 7 | 67.64坪 | − | − | 募集終了 | − | − | − | ||
| 8 | 73.44坪 | − | − | 募集終了 | − | − | − | ||
| 8 | 67.61坪 | − | − | 募集終了 | − | − | − | ||
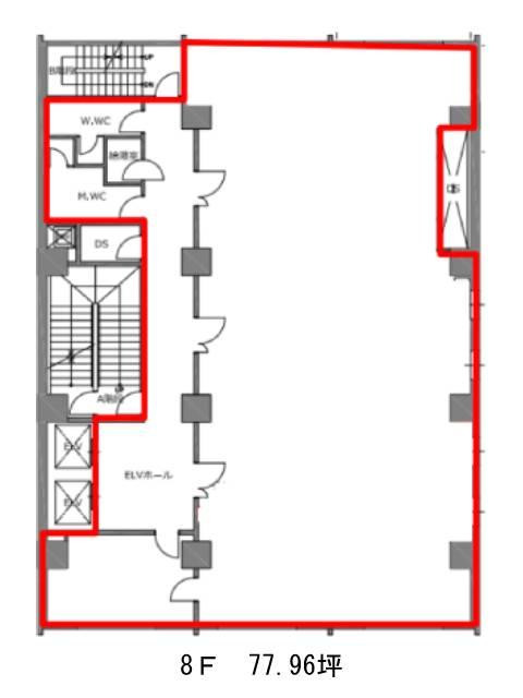
| 8 | 77.96坪 | − | − | 募集終了 | − | − | − |


