現在、空室がございません。
池田ビルの貸事務所・賃貸オフィス情報
池田ビルの貸事務所・賃貸オフィス情報
池田ビル
- エレベーター
- 個別空調
- 旧耐震基準
池田ビルの空室フロアリスト
現在、空室がございません。
池田ビルの物件情報
池田ビル(中央区築地)は築地駅徒歩4分、築地市場駅徒歩5分、東銀座駅徒歩5分の賃貸オフィスです。
池田ビルのアクセス
池田ビルの募集終了区画
| 階数 | 面積 | 賃料+共益費 | 保証金 | 入居時期 | 更新料 | 償却費 | 礼金 | 平面図 | 詳細 |
|---|---|---|---|---|---|---|---|---|---|
| 1 | 19.93坪 | − | − | 募集終了 | − | − | − | ||
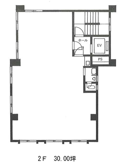
| 2 | 30.00坪 | − | − | 募集終了 | − | − | − | ||
| 4 | 21.99坪 | − | − | 募集終了 | − | − | − |


