0120-16-2331

【受付時間】平日 AM9:00〜PM7:00

メールでお問合せ

SW東銀座No.1ビルの貸事務所・賃貸オフィス情報

SW東銀座No.1ビルの貸事務所・賃貸オフィス情報

SW東銀座No.1ビル

物件番号
640​-​00078
所在地
東京都中央区築地2-14-2
最寄駅
築地駅 2分
銀座駅 9分
竣工
1962年2月
規模
地上7階/地下1階
  • エレベーター
  • 個別空調
  • 旧耐震基準

SW東銀座No.1ビルの空室フロアリスト

階数 面積 賃料+共益費 保証金 入居時期 更新料 償却費 礼金 検討 平面図 詳細
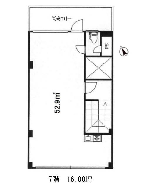
7 16.00坪
297,000円18,562円/坪
69万円
新1ケ月 1ケ月 1ケ月

SW東銀座No.1ビルの物件情報

SW東銀座No.1ビル(中央区築地)は築地駅徒歩2分、東銀座駅徒歩5分、新富町駅徒歩6分の賃貸オフィスです。

SW東銀座No.1ビルのアクセス

SW東銀座No.1ビルの条件に近い物件

森田ビル

東京都中央区築地2-14-4

森田ビル
  • 面積 16.28坪
  • 空きフロア 1
  • 最寄り駅
    築地駅 徒歩2分

秀和第2築地レジデンス

東京都中央区築地4-3-12

秀和第2築地レジデンス
  • 面積 16.79坪
  • 空きフロア 1
  • 最寄り駅
    東銀座駅 徒歩4分

Misto Tsukiji

東京都中央区築地2-11-10

Misto Tsukiji
  • 面積 17.02坪
  • 空きフロア 1
  • 最寄り駅
    築地駅 徒歩2分

池田ビル

東京都中央区築地7-11-8

池田ビル
  • 面積 18.19坪
  • 空きフロア 1
  • 最寄り駅
    築地駅 徒歩5分

ムルーエ築地

東京都中央区築地1-9-11

ムルーエ築地
  • 面積 18.87坪
  • 空きフロア 1
  • 最寄り駅
    新富町駅 徒歩3分

コンワビル

東京都中央区築地1-12-22

コンワビル
  • 面積 19.17坪
  • 空きフロア 1
  • 最寄り駅
    東銀座駅 徒歩3分

三ツ田ビル

東京都中央区築地1-12-15

三ツ田ビル
  • 面積 19.26坪
  • 空きフロア 1
  • 最寄り駅
    築地駅 徒歩4分

ACN築地242ビル

東京都中央区築地2-4-2

ACN築地242ビル
  • 面積 20.52~68.10坪
  • 空きフロア 6
  • 最寄り駅
    新富町駅 徒歩2分

フェニックスビル

東京都中央区築地2-11-4

フェニックスビル
  • 面積 23.00坪
  • 空きフロア 1
  • 最寄り駅
    築地駅 徒歩2分

貸事務所・賃貸オフィスを最寄駅から探す

貸事務所・賃貸オフィスを最寄駅の沿線から探す

SW東銀座No.1ビルの募集終了区画

階数 面積 賃料+共益費 保証金 入居時期 更新料 償却費 礼金 平面図 詳細
地下1 22.64坪 募集終了
1 16.00坪 募集終了
3 20.41坪 募集終了
4 20.41坪 募集終了
5 24.00坪 募集終了
6 23.00坪 募集終了
お問合せ このビルについて問い合わせる