魚鉄ビルの貸事務所・賃貸オフィス情報
魚鉄ビルの貸事務所・賃貸オフィス情報
魚鉄ビル
- エレベーター
- 個別空調
- 旧耐震基準
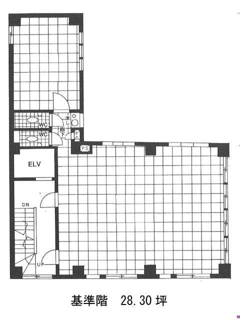
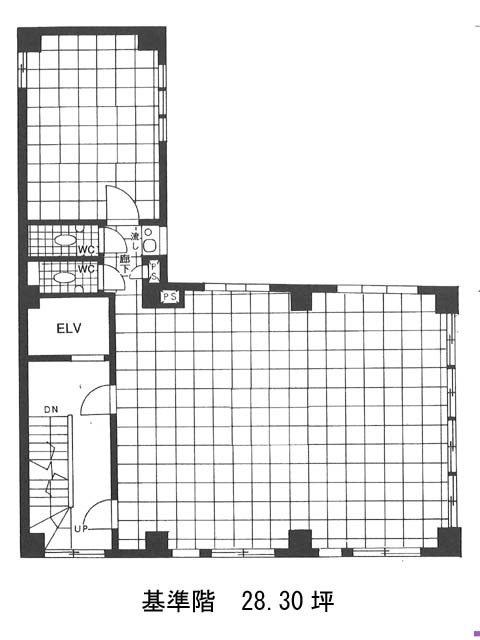
魚鉄ビルの空室フロアリスト
| 階数 | 面積 | 賃料+共益費 | 保証金 | 入居時期 | 更新料 | 償却費 | 礼金 | 検討 | 平面図 | 詳細 |
|---|---|---|---|---|---|---|---|---|---|---|
| 1 | 28.30坪 |
1,400,850円49,500円/坪
|
1528万円
|
相談 | 新1ケ月 | 2ケ月 | なし |
魚鉄ビルの物件情報
魚鉄ビル(中央区日本橋)は日本橋駅徒歩2分、茅場町駅徒歩5分、三越前駅徒歩7分の賃貸オフィスです。
魚鉄ビルのアクセス
魚鉄ビルの条件に近い物件
魚鉄ビルの募集終了区画
| 階数 | 面積 | 賃料+共益費 | 保証金 | 入居時期 | 更新料 | 償却費 | 礼金 | 平面図 | 詳細 |
|---|---|---|---|---|---|---|---|---|---|
| 2 | 28.30坪 | − | − | 募集終了 | − | − | − | ||
| 3 | 28.30坪 | − | − | 募集終了 | − | − | − | ||
| 4 | 28.30坪 | − | − | 募集終了 | − | − | − |


