ACN日本橋小網町ビルの貸事務所・賃貸オフィス情報
ACN日本橋小網町ビルの貸事務所・賃貸オフィス情報
ACN日本橋小網町ビル
- エレベーター
 - 個別空調
 - 新耐震基準
 
ACN日本橋小網町ビルの空室フロアリスト
| 階数 | 面積 | 賃料+共益費 | 保証金 | 入居時期 | 更新料 | 償却費 | 礼金 | 検討 | 平面図 | 詳細 | 
|---|---|---|---|---|---|---|---|---|---|---|
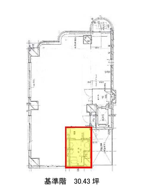
| 5 | 30.43坪 | 
                                         
                                            応相談応相談
                                         
                                     | 
                                    
                                         
                                            応相談
                                         
                                     | 
                                    2026年1月 | 新1ケ月 | 1ケ月 | なし | 
ACN日本橋小網町ビルの物件情報
ACN日本橋小網町ビル(中央区日本橋小網町)は水天宮前駅徒歩4分、茅場町駅徒歩5分、人形町駅徒歩5分の賃貸オフィスです。
ACN日本橋小網町ビルのアクセス
ACN日本橋小網町ビルの募集終了区画
| 階数 | 面積 | 賃料+共益費 | 保証金 | 入居時期 | 更新料 | 償却費 | 礼金 | 平面図 | 詳細 | 
|---|---|---|---|---|---|---|---|---|---|
| 1 | 20.96坪 | − | − | 募集終了 | − | − | − | ||
| 2 | 30.34坪 | − | − | 募集終了 | − | − | − | ||
| 4 | 30.43坪 | − | − | 募集終了 | − | − | − | ||
| 6 | 30.34坪 | − | − | 募集終了 | − | − | − | ||
| 7 | 30.34坪 | − | − | 募集終了 | − | − | − | 
                                            
                                                                            
            
                                
                                                    
                                
                                                    
                                
                                                    
                                
                                                    
                                
                                                    

