人形町サンシティビルの貸事務所・賃貸オフィス情報
人形町サンシティビルの貸事務所・賃貸オフィス情報
人形町サンシティビル
- 物件番号
- 652-00093
- 所在地
- 東京都中央区日本橋人形町1-2-7
- 竣工
- 1990年8月
- 規模
- 地上9階
- エレベーター
- 個別空調
- 新耐震基準
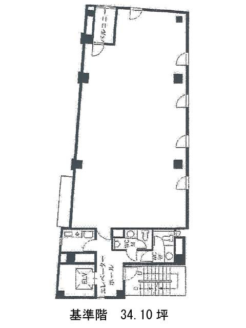
人形町サンシティビルの空室フロアリスト
| 階数 | 面積 | 賃料+共益費 | 保証金 | 入居時期 | 更新料 | 償却費 | 礼金 | 検討 | 平面図 | 詳細 |
|---|---|---|---|---|---|---|---|---|---|---|
| 3 | 34.10坪 |
応相談応相談
|
応相談
|
2026年3月上旬 | なし | 10% | なし |
人形町サンシティビルの物件情報
人形町サンシティビル(中央区日本橋人形町)は人形町駅徒歩2分、水天宮前駅徒歩6分、三越前駅徒歩8分の賃貸オフィスです。
人形町サンシティビルのアクセス
人形町サンシティビルの募集終了区画
| 階数 | 面積 | 賃料+共益費 | 保証金 | 入居時期 | 更新料 | 償却費 | 礼金 | 平面図 | 詳細 |
|---|---|---|---|---|---|---|---|---|---|
| 1 | 19.60坪 | − | − | 募集終了 | − | − | − | ||
| 2 | 34.10坪 | − | − | 募集終了 | − | − | − | ||
| 4 | 34.10坪 | − | − | 募集終了 | − | − | − | ||
| 5 | 34.10坪 | − | − | 募集終了 | − | − | − | ||
| 6 | 34.10坪 | − | − | 募集終了 | − | − | − | ||
| 7 | 34.10坪 | − | − | 募集終了 | − | − | − | ||
| 9 | 34.10坪 | − | − | 募集終了 | − | − | − |


