U-Axisの貸事務所・賃貸オフィス情報
U-Axisの貸事務所・賃貸オフィス情報
U-Axis
- エレベーター
- 個別空調
- 新耐震基準
U-Axisの空室フロアリスト
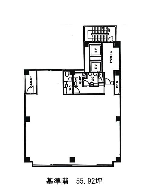
| 階数 | 面積 | 賃料+共益費 | 保証金 | 入居時期 | 更新料 | 償却費 | 礼金 | 検討 | 平面図 | 詳細 |
|---|---|---|---|---|---|---|---|---|---|---|
| 7 | 55.92坪 |
1,107,216円19,800円/坪
|
810万円
|
2026年9月上旬 | なし | なし | なし |
U-Axisの物件情報
U-Axis(中央区入船)は新富町駅徒歩3分、八丁堀駅徒歩4分、築地駅徒歩6分の賃貸オフィスです。
U-Axisのアクセス
U-Axisの条件に近い物件
U-Axisの募集終了区画
| 階数 | 面積 | 賃料+共益費 | 保証金 | 入居時期 | 更新料 | 償却費 | 礼金 | 平面図 | 詳細 |
|---|---|---|---|---|---|---|---|---|---|
| 6 | 56.00坪 | − | − | 募集終了 | − | − | − | ||
| 8 | 55.92坪 | − | − | 募集終了 | − | − | − | ||
| 9 | 55.92坪 | − | − | 募集終了 | − | − | − |


