現在、空室がございません。
八丁堀陽光ビルの貸事務所・賃貸オフィス情報
八丁堀陽光ビルの貸事務所・賃貸オフィス情報
八丁堀陽光ビル
- エレベーター
- 個別空調
- 旧耐震基準
八丁堀陽光ビルの空室フロアリスト
現在、空室がございません。
八丁堀陽光ビルの物件情報
八丁堀陽光ビル(中央区八丁堀)は八丁堀駅徒歩1分、茅場町駅徒歩7分、宝町駅徒歩8分の賃貸オフィスです。
八丁堀陽光ビルのアクセス
八丁堀陽光ビルの募集終了区画
| 階数 | 面積 | 賃料+共益費 | 保証金 | 入居時期 | 更新料 | 償却費 | 礼金 | 平面図 | 詳細 |
|---|---|---|---|---|---|---|---|---|---|
| 2 | 15.27坪 | − | − | 募集終了 | − | − | − | ||
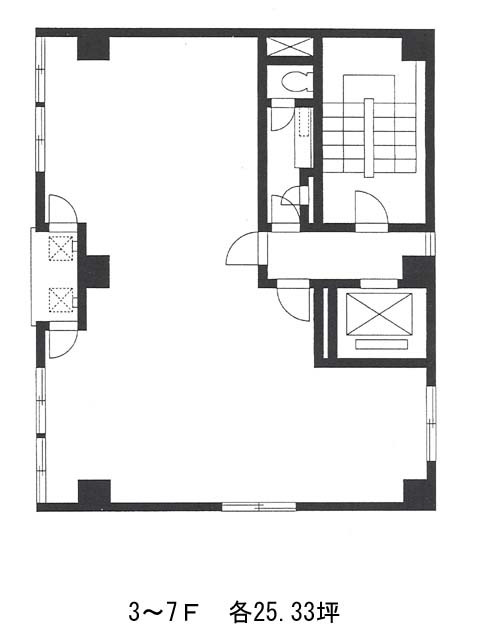
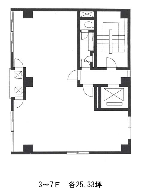
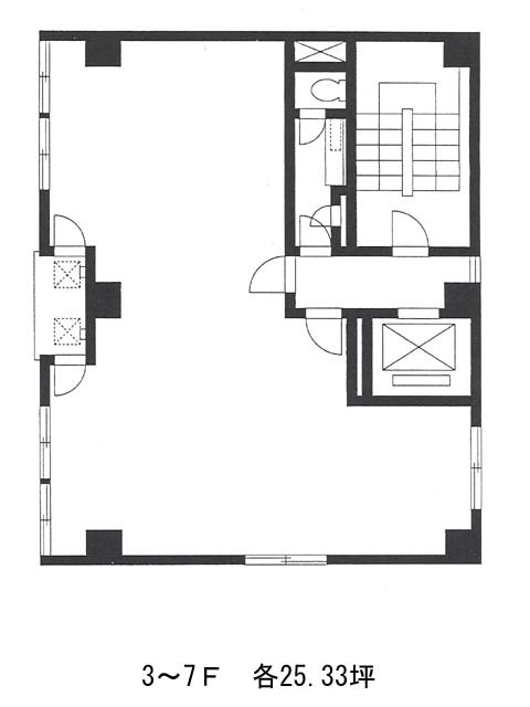
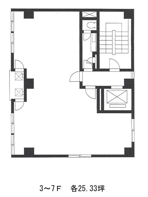
| 3 | 25.33坪 | − | − | 募集終了 | − | − | − | ||
| 4 | 25.33坪 | − | − | 募集終了 | − | − | − | ||
| 4 | 15.27坪 | − | − | 募集終了 | − | − | − | ||
| 5 | 15.27坪 | − | − | 募集終了 | − | − | − | ||
| 6 | 25.33坪 | − | − | 募集終了 | − | − | − | ||
| 7 | 25.33坪 | − | − | 募集終了 | − | − | − |


