東京モリスビル第10の貸事務所・賃貸オフィス情報
東京モリスビル第10の貸事務所・賃貸オフィス情報
東京モリスビル第10
- エレベーター
- 個別空調
- 新耐震基準
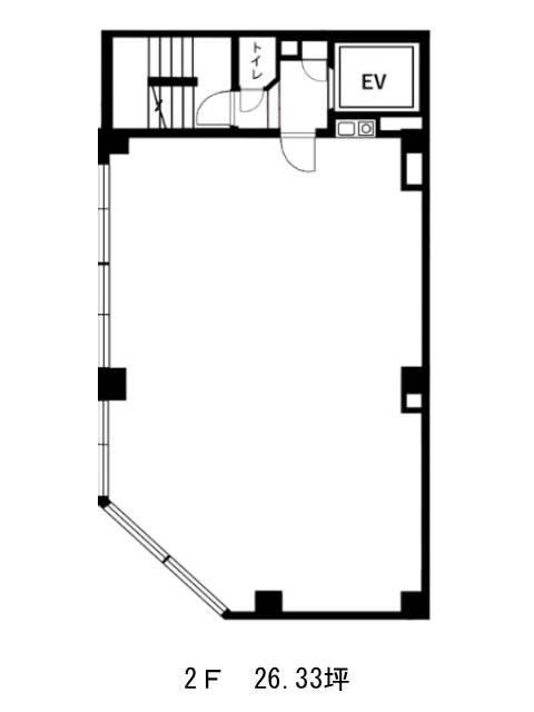
東京モリスビル第10の空室フロアリスト
| 階数 | 面積 | 賃料+共益費 | 保証金 | 入居時期 | 更新料 | 償却費 | 礼金 | 検討 | 平面図 | 詳細 |
|---|---|---|---|---|---|---|---|---|---|---|
| 2 | 26.33坪 |
419,963円15,950円/坪
|
152万円
|
即 | 新1ケ月 | 2ケ月 | 1ケ月 | |||
| 3 | 26.04坪 |
415,338円15,950円/坪
|
151万円
|
2026年2月上旬 | 新1ケ月 | 2ケ月 | 1ケ月 |
東京モリスビル第10の物件情報
東京モリスビル第10(品川区西五反田)は大崎広小路駅徒歩6分、五反田駅徒歩7分、不動前駅徒歩10分の賃貸オフィスです。
東京モリスビル第10のアクセス
東京モリスビル第10の募集終了区画
| 階数 | 面積 | 賃料+共益費 | 保証金 | 入居時期 | 更新料 | 償却費 | 礼金 | 平面図 | 詳細 |
|---|---|---|---|---|---|---|---|---|---|
| 2 | 26.04坪 | − | − | 募集終了 | − | − | − | ||
| 3 | 27.61坪 | − | − | 募集終了 | − | − | − | ||
| 4 | 26.04坪 | − | − | 募集終了 | − | − | − |


