ONEST西五反田スクエアの貸事務所・賃貸オフィス情報
ONEST西五反田スクエアの貸事務所・賃貸オフィス情報
ONEST西五反田スクエア
- エレベーター
- 個別空調
- 駐車場
- 新耐震基準
ONEST西五反田スクエアの空室フロアリスト
| 階数 | 面積 | 賃料+共益費 | 保証金 | 入居時期 | 更新料 | 償却費 | 礼金 | 検討 | 平面図 | 詳細 |
|---|---|---|---|---|---|---|---|---|---|---|
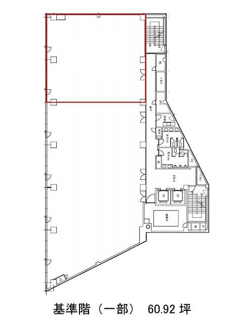
| 3 | 91.46坪 |
応相談応相談
|
応相談
|
即 | なし | なし | なし |
ONEST西五反田スクエアの物件情報
ONEST西五反田スクエア(品川区西五反田)は大崎広小路駅徒歩7分、戸越駅徒歩9分、五反田駅徒歩10分の賃貸オフィスです。
ONEST西五反田スクエアのアクセス
ONEST西五反田スクエアの条件に近い物件
ONEST西五反田スクエアの募集終了区画
| 階数 | 面積 | 賃料+共益費 | 保証金 | 入居時期 | 更新料 | 償却費 | 礼金 | 平面図 | 詳細 |
|---|---|---|---|---|---|---|---|---|---|
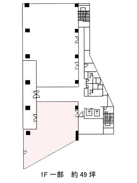
| 1 | 49.00坪 | − | − | 募集終了 | − | − | − | ||
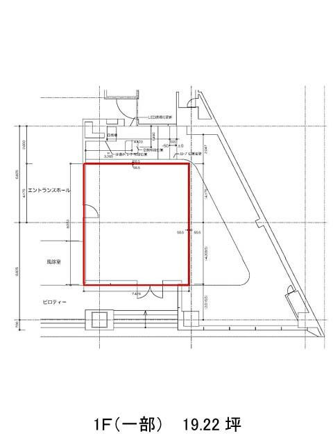
| 1 | 19.22坪 | − | − | 募集終了 | − | − | − | ||
| 2 | 122.35坪 | − | − | 募集終了 | − | − | − | ||
| 2 | 51.52坪 | − | − | 募集終了 | − | − | − | ||
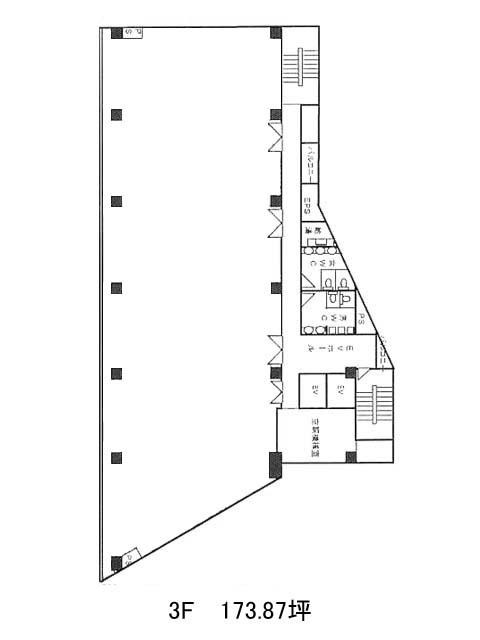
| 3 | 173.87坪 | − | − | 募集終了 | − | − | − | ||
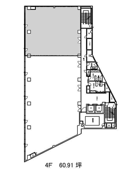
| 4 | 60.91坪 | − | − | 募集終了 | − | − | − | ||
| 4 | 112.83坪 | − | − | 募集終了 | − | − | − | ||
| 4 | 173.87坪 | − | − | 募集終了 | − | − | − | ||
| 5 | 173.00坪 | − | − | 募集終了 | − | − | − | ||
| 6 | 173.94坪 | − | − | 募集終了 | − | − | − | ||
| 7 | 112.83坪 | − | − | 募集終了 | − | − | − | ||
| 7 | 60.92坪 | − | − | 募集終了 | − | − | − |


