日幸五反田ビル別館の貸事務所・賃貸オフィス情報
日幸五反田ビル別館の貸事務所・賃貸オフィス情報
日幸五反田ビル別館
- エレベーター
- 個別空調
- 新耐震基準
日幸五反田ビル別館の空室フロアリスト
| 階数 | 面積 | 賃料+共益費 | 保証金 | 入居時期 | 更新料 | 償却費 | 礼金 | 検討 | 平面図 | 詳細 |
|---|---|---|---|---|---|---|---|---|---|---|
| 3 | 25.25坪 |
応相談応相談
|
応相談
|
2026年4月上旬 | なし | なし | なし |
日幸五反田ビル別館の物件情報
日幸五反田ビル別館(品川区西五反田)は五反田駅徒歩4分、大崎広小路駅徒歩5分、不動前駅徒歩10分の賃貸オフィスです。
日幸五反田ビル別館のアクセス
日幸五反田ビル別館の募集終了区画
| 階数 | 面積 | 賃料+共益費 | 保証金 | 入居時期 | 更新料 | 償却費 | 礼金 | 平面図 | 詳細 |
|---|---|---|---|---|---|---|---|---|---|
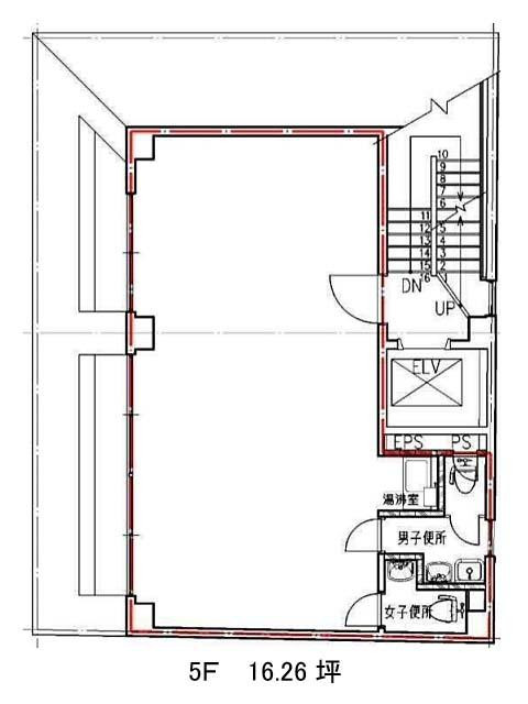
| 5 | 16.26坪 | − | − | 募集終了 | − | − | − |


