五反田塩谷ビルの貸事務所・賃貸オフィス情報
五反田塩谷ビルの貸事務所・賃貸オフィス情報
五反田塩谷ビル
- エレベーター
- 新耐震基準
五反田塩谷ビルの空室フロアリスト
| 階数 | 面積 | 賃料+共益費 | 保証金 | 入居時期 | 更新料 | 償却費 | 礼金 | 検討 | 平面図 | 詳細 |
|---|---|---|---|---|---|---|---|---|---|---|
| 8 | 18.54坪 |
265,122円14,300円/坪
|
163万円
|
即 | 新1ケ月 | 1ケ月 | なし |
五反田塩谷ビルの物件情報
五反田塩谷ビル(品川区西五反田)は不動前駅徒歩6分、大崎広小路駅徒歩8分、五反田駅徒歩9分の賃貸オフィスです。
五反田塩谷ビルのアクセス
五反田塩谷ビルの募集終了区画
| 階数 | 面積 | 賃料+共益費 | 保証金 | 入居時期 | 更新料 | 償却費 | 礼金 | 平面図 | 詳細 |
|---|---|---|---|---|---|---|---|---|---|
| 1 | 25.11坪 | − | − | 募集終了 | − | − | − | ||
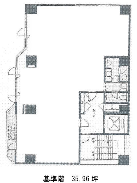
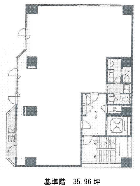
| 2 | 35.96坪 | − | − | 募集終了 | − | − | − | ||
| 3 | 35.96坪 | − | − | 募集終了 | − | − | − | ||
| 4 | 18.54坪 | − | − | 募集終了 | − | − | − | ||
| 5 | 18.54坪 | − | − | 募集終了 | − | − | − | ||
| 6 | 18.54坪 | − | − | 募集終了 | − | − | − | ||
| 9 | 18.54坪 | − | − | 募集終了 | − | − | − | ||
| 10 | 18.54坪 | − | − | 募集終了 | − | − | − |


