プラネットビルの貸事務所・賃貸オフィス情報
プラネットビルの貸事務所・賃貸オフィス情報
プラネットビル
- エレベーター
- 個別空調
- 新耐震基準
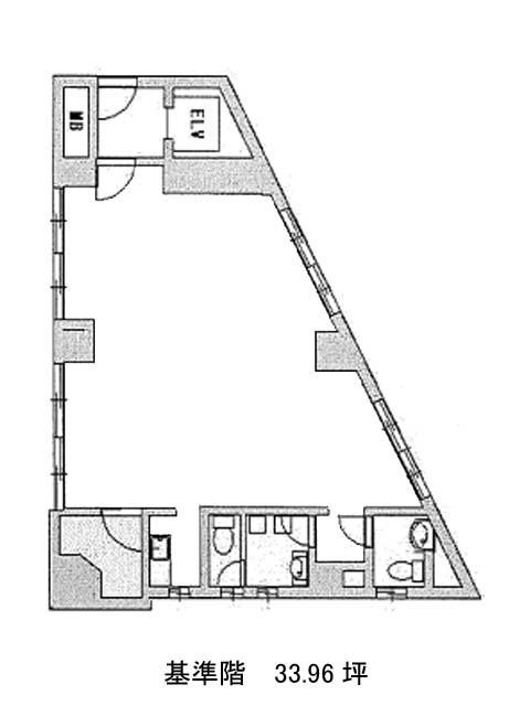
プラネットビルの空室フロアリスト
| 階数 | 面積 | 賃料+共益費 | 保証金 | 入居時期 | 更新料 | 償却費 | 礼金 | 検討 | 平面図 | 詳細 |
|---|---|---|---|---|---|---|---|---|---|---|
| 6 | 33.96坪 |
539,000円15,871円/坪
|
258万円
|
即 | 新1ケ月 | 1ケ月 | 1ケ月 |
プラネットビルの物件情報
プラネットビル(品川区西五反田)は五反田駅徒歩6分、目黒駅徒歩9分、不動前駅徒歩10分の賃貸オフィスです。
プラネットビルのアクセス
プラネットビルの条件に近い物件
プラネットビルの募集終了区画
| 階数 | 面積 | 賃料+共益費 | 保証金 | 入居時期 | 更新料 | 償却費 | 礼金 | 平面図 | 詳細 |
|---|---|---|---|---|---|---|---|---|---|
| 1 | 21.32坪 | − | − | 募集終了 | − | − | − | ||
| 2 | 33.96坪 | − | − | 募集終了 | − | − | − | ||
| 3 | 33.96坪 | − | − | 募集終了 | − | − | − | ||
| 4 | 33.96坪 | − | − | 募集終了 | − | − | − | ||
| 5 | 33.96坪 | − | − | 募集終了 | − | − | − | ||
| 7 | 33.96坪 | − | − | 募集終了 | − | − | − | ||
| 8 | 33.96坪 | − | − | 募集終了 | − | − | − |


