扇寿ビルの貸事務所・賃貸オフィス情報
扇寿ビルの貸事務所・賃貸オフィス情報
扇寿ビル
- エレベーター
- 旧耐震基準
扇寿ビルの空室フロアリスト
| 階数 | 面積 | 賃料+共益費 | 保証金 | 入居時期 | 更新料 | 償却費 | 礼金 | 検討 | 平面図 | 詳細 |
|---|---|---|---|---|---|---|---|---|---|---|
| 5 | 16.46坪 |
302,500円18,378円/坪
|
270万円
|
即 | 新1ケ月 | 1ケ月 | 1ケ月 |
扇寿ビルの物件情報
扇寿ビル(品川区東五反田)は五反田駅徒歩2分、大崎広小路駅徒歩9分、高輪台駅徒歩11分の賃貸オフィスです。
扇寿ビルのアクセス
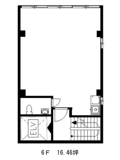
扇寿ビルの募集終了区画
| 階数 | 面積 | 賃料+共益費 | 保証金 | 入居時期 | 更新料 | 償却費 | 礼金 | 平面図 | 詳細 |
|---|---|---|---|---|---|---|---|---|---|
| 6 | 16.46坪 | − | − | 募集終了 | − | − | − |


