Orient Bld No.140 OIトレーディングビルの貸事務所・賃貸オフィス情報
Orient Bld No.140 OIトレーディングビルの貸事務所・賃貸オフィス情報
Orient Bld No.140 OIトレーディングビル
- エレベーター
- 個別空調
- 駐車場
- 新耐震基準
Orient Bld No.140 OIトレーディングビルの空室フロアリスト
| 階数 | 面積 | 賃料+共益費 | 保証金 | 入居時期 | 更新料 | 償却費 | 礼金 | 検討 | 平面図 | 詳細 |
|---|---|---|---|---|---|---|---|---|---|---|
| 2 | 56.40坪 |
806,520円14,300円/坪
|
733万円
|
即 | 新1ケ月 | なし | 1ケ月 |
Orient Bld No.140 OIトレーディングビルの物件情報
Orient Bld No.140 OIトレーディングビル(品川区南大井)は大森海岸駅徒歩5分、大森駅徒歩6分の賃貸オフィスです。
Orient Bld No.140 OIトレーディングビルのアクセス
Orient Bld No.140 OIトレーディングビルの条件に近い物件
Orient Bld No.140 OIトレーディングビルの募集終了区画
| 階数 | 面積 | 賃料+共益費 | 保証金 | 入居時期 | 更新料 | 償却費 | 礼金 | 平面図 | 詳細 |
|---|---|---|---|---|---|---|---|---|---|
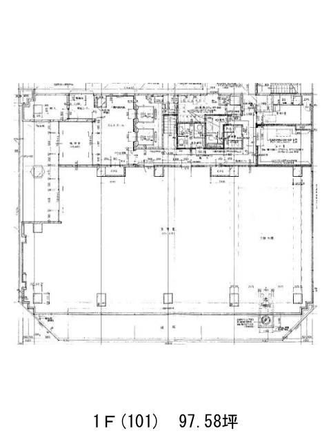
| 1 | 97.58坪 | − | − | 募集終了 | − | − | − | ||
| 1 | 97.58坪 | − | − | 募集終了 | − | − | − | ||
| 2 | 108.70坪 | − | − | 募集終了 | − | − | − | ||
| 3 | 117.10坪 | − | − | 募集終了 | − | − | − | ||
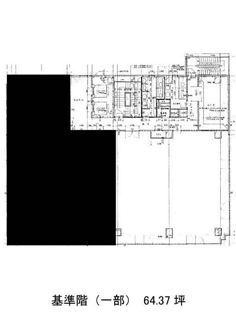
| 3 | 64.37坪 | − | − | 募集終了 | − | − | − | ||
| 3 | 50.31坪 | − | − | 募集終了 | − | − | − | ||
| 4 | 117.10坪 | − | − | 募集終了 | − | − | − | ||
| 5 | 117.10坪 | − | − | 募集終了 | − | − | − | ||
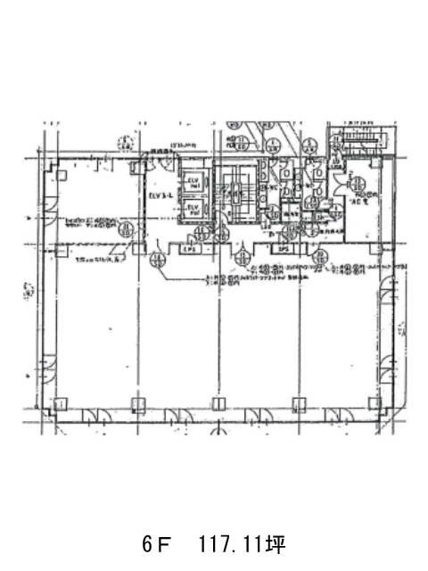
| 6 | 117.11坪 | − | − | 募集終了 | − | − | − | ||
| 7 | 102.87坪 | − | − | 募集終了 | − | − | − |


