現在、空室がございません。
寿ビルの貸事務所・賃貸オフィス情報
寿ビルの貸事務所・賃貸オフィス情報
寿ビル
- エレベーター
- 個別空調
- 駐車場
- 新耐震基準
寿ビルの空室フロアリスト
現在、空室がございません。
寿ビルの物件情報
寿ビル(品川区北品川)は北品川駅徒歩8分、品川駅徒歩8分、新馬場駅徒歩13分の賃貸オフィスです。
寿ビルのアクセス
寿ビルの募集終了区画
| 階数 | 面積 | 賃料+共益費 | 保証金 | 入居時期 | 更新料 | 償却費 | 礼金 | 平面図 | 詳細 |
|---|---|---|---|---|---|---|---|---|---|
| 1 | 43.60坪 | − | − | 募集終了 | − | − | − | ||
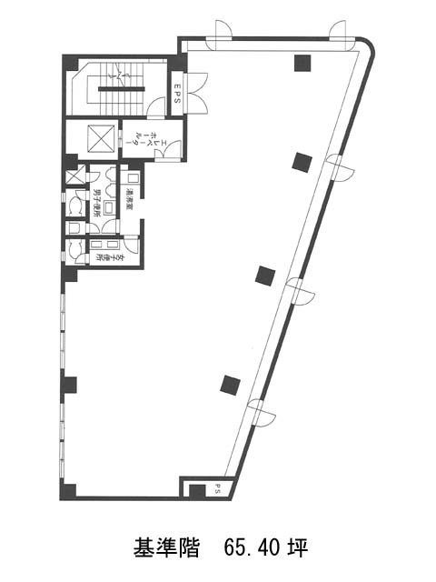
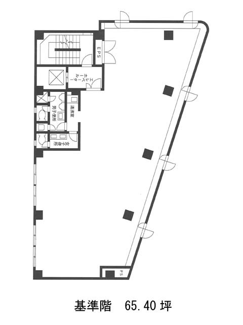
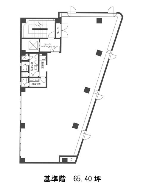
| 2 | 65.40坪 | − | − | 募集終了 | − | − | − | ||
| 3 | 65.40坪 | − | − | 募集終了 | − | − | − | ||
| 4 | 65.40坪 | − | − | 募集終了 | − | − | − | ||
| 5 | 65.40坪 | − | − | 募集終了 | − | − | − |


